Benvenuto in CaseAffittoeVendita!  Accedi | Registrati

100 m² | 3 locali | € 258.000

Richiedi informazioni

 
 



(info)
 

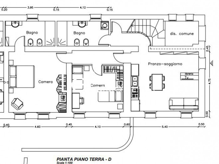
CONEGLIANO - AA55 GRAZIOSO APPARTAMENTO 2 CAMERE 2 BAGNI AL PIANO TERRA Proponiamo in vendita appartamento 2 camere 2 bagni situato al piano terra con porticato inserito in una palazzina di poche unita'. L'immobile è in fase di ristrutturazione interna completa e gode di mpiantistica di ultima generazione con serramenti ad alta efficienza energetica, per garantirne la classe A1. L'appartamento è composto al piano terra da una cucina-soggiorno, due spaziose camere da letto, due bagni, un ampio porticato di circa 20 metri quadrati, due posti auto (uno dei quali coperto) ed una cantina. L'abitazione godrà di impianto pavimento, climatizzatore canalizzato free cooling, pompa calore, serramenti a basso emissivo e predisposizione fotovoltaico ed addolcitore. Da vedere! Per informazioni 342 7786327 Se sei interessato/a a questo immobile e desideri richiedere maggiori informazioni o programmare una visita, siamo a tua disposizione via email info@lefimmobiliare.it o al numero di telefono 0438 1960226. Ti informiamo che il nostro annuncio rispetta la legge sulla privacy, pertanto l'indirizzo riportato è puramente indicativo e non corrisponde all'esatta ubicazione dell'immobile. Per consultare altre proposte immobiliari, consigliamo di visitare il nostro sito web www.lefimmobiliare.it o di recarti personalmente presso la nostra agenzia. Siamo a disposizione per fornirti ulteriori dettagli e supportarti nella scelta della soluzione più adatta alle tue esigenze abitative. La nostra sede si trova in Via Zanzotto 15 a Pieve di Soligo (TV). Tel. 0438 1960226 Cell. 342 7786327 www.lefimmobiliare.it info@lefimmobiliare.it Classe Energetica: A1 - IPE: 0.00kWh/mq anno

Tipologia:
Appartamento Indipendente
Gestione:
Vendita
Superficie:
100 m²
Terrazzi:
4 m²
Locali:
3
Camere:
2
Bagni:
2
Condizioni:
Ristrutturato
Posto Auto:
Posto auto
Giardino:
Nessuno
Ascensore:
No
Piscina:
No
Aria Condizionata:
Cucina:
Angolo cottura
Riscaldamento:
Autonomo
Classe energetica:
In attesa di comunicazione

Richiedi informazioni


 

 


(info)