Benvenuto in CaseAffittoeVendita!  Accedi | Registrati

130 m² | 5 locali | € 140.000

Richiedi informazioni

 
 



(info)
 

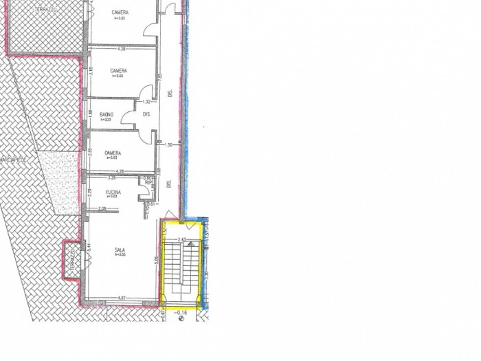
ALTOPASCIO in ottima posizione vicino al centro, appartamento di grandi dimensioni 120 mq, posto al piano primo ed ultimo. Ingresso a comune solo con altro appartamento. Internamente l'immobile è composto da: soggiorno-pranzo con piccolo terrazzo, cucinotto con dispensa, disimpegno, camera matrimoniale, camera doppia, cameretta, bagno, ripostiglio e bel terrazzo di 25 mq (5x5) . Buone finiture interne. Termosingolo. NO condominio. Classe Energetica: F - IPE: 0.00kWh/mq anno

Tipologia:
Appartamento
Gestione:
Vendita
Superficie:
130 m²
Terrazzi:
4 m²
Locali:
5
Camere:
3
Bagni:
1
Condizioni:
Buono
Posto Auto:
No
Giardino:
Nessuno
Ascensore:
No
Piscina:
No
Aria Condizionata:
Cucina:
Semi abitabile
Riscaldamento:
Autonomo
Classe energetica:
F

Richiedi informazioni


 

 


(info)