Benvenuto in CaseAffittoeVendita!  Accedi | Registrati

220 m² | 4 locali | € 160.000

Richiedi informazioni

 
 



(info)
 

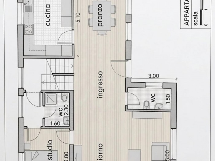
Nel suggestivo scenario delle colline di Castelfiorentino, in una posizione che garantisce massima privacy e una vista aperta a 360° sui profili tipici della campagna toscana, proponiamo la vendita di un fabbricato rurale di ampia metratura, con possibilità di sfruttare la parte interrata come taverna o altri usi, lasciando l'abitazione principiale al piano terreno con possibilità di spazi sfalsati, andando a sfruttare l'intera altezza. Il complesso immobiliare è composto da un fabbricato rurale, ridotto a rudere, sviluppato su due livelli ed un ampio appezzamento di terreno agricolo circostante avente complessivamente una superficie di circa 5.000 metri quadrati. Sfruttando la sagoma planimetrica esistente potrà essere realizzato un appartamento con superficie abitabile, al lordo delle murature esterne, di circa 220 metri quadrati. Potrà inoltre essere realizzata una piscina, completamente a raso terreno, inserita nel contesto ambientale senza dover eseguire grandi opere di sterro e riporto. L'immobile rappresenta un'opportunità ideale per chi ricerca una proprietà da personalizzare integralmente, sia come residenza privata di prestigio, sia come struttura ricettiva di alto profilo (Boutique Hotel o Agriturismo). Caratteristiche e Potenzialità Tecniche L'immobile è attualmente accatastato come fabbricato rurale e necessita di un intervento di recupero totale. La struttura si presta perfettamente al processo di deruralizzazione, permettendo il cambio di destinazione d'uso in civile abitazione. Gli oneri di deruralizzazione sono stimati per un valore di 45 mila euro. Classe Energetica: immobile non soggetto a classificazione

Tipologia:
Rustico - Casolare - Colonica
Gestione:
Vendita
Superficie:
220 m²
Locali:
4
Camere:
2
Bagni:
2
Condizioni:
Da Ristrutturare
Giardino:
Privato
Ascensore:
No
Piscina:
No
Aria Condizionata:
No
Riscaldamento:
Centralizzato
Classe energetica:
esente

Richiedi informazioni


 

 


(info)