Benvenuto in CaseAffittoeVendita!  Accedi | Registrati

151 m² | 4 locali | € 398.000

Richiedi informazioni

 
 



(info)
 

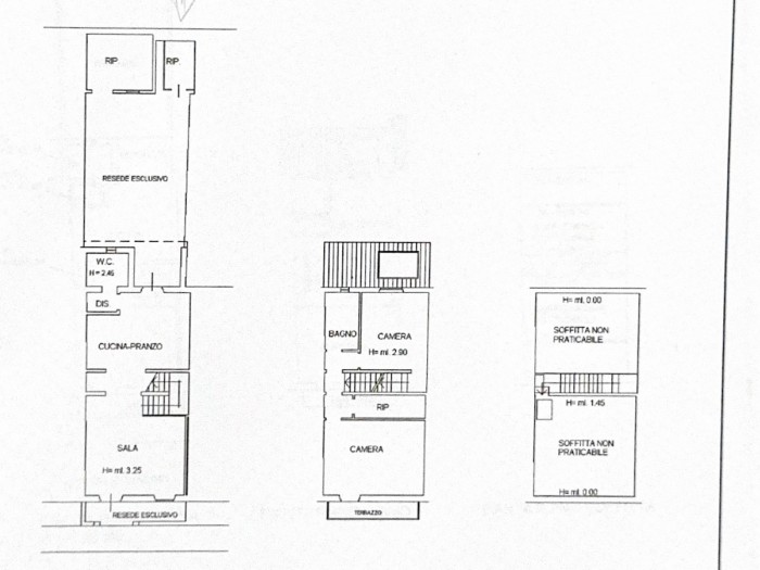
ESCLUSIVA IMMOBILIARE ZOPPI PRATO - MEZZANA -- Casa indipendente ristrutturata in stile rustico toscano Nel cuore di Mezzana, proponiamo in vendita una splendida casa indipendente, sapientemente ristrutturata e caratterizzata dal tipico fascino dello stile rustico toscano. L'immobile, di circa 150 mq commerciali (130 mq calpestabili), si distingue per ambienti ampi, luminosi e ben distribuiti, ideali per chi è alla ricerca di comfort e autenticità. Gli interni conservano elementi di grande pregio come le suggestive volte a mattoncini a vista e il pavimento in cotto nella zona giorno, mentre la zona notte è valorizzata da un caldo parquet che rende gli ambienti ancora più accoglienti. L'ingresso, dal resede frontale, conduce a un soggiorno spazioso e invitante, perfetto per momenti di relax. La cucina open space, recentemente installata, è arricchita da una funzionale penisola, ideale per vivere la convivialità quotidiana. Completano il piano terra un comodo antibagno e un bagno finestrato con doccia, oltre al ripostiglio. Al piano superiore si sviluppa la zona notte, composta da due ampie camere matrimoniali, di cui una particolarmente generosa nelle dimensioni, e un secondo bagno finestrato con vasca. Interessante la possibilità di realizzare una terza camera, adattando gli spazi alle diverse esigenze abitative. Possibilità di ricavare la terza camera, in quanto già esistente prima della ultima ristrutturazione. Sul retro, il resede pavimentato offre uno spazio riservato e piacevole, perfetto per pranzi e cene all'aperto. Completano la proprietà una pratica zona lavanderia, una cantina e una soffitta ad uso rimessaggio. L'immobile è dotato di aria condizionata e inferriate, ed è pronto per essere abitato fin da subito. Una soluzione ideale per chi desidera vivere l'atmosfera autentica della Toscana, senza rinunciare al comfort moderno. Alcune foto possono essere state oggetto di rielaborazione digitale. Maggiori info in agenzia. Classe Energetica: F - IPE: 0.00kWh/mq anno

Tipologia:
Villa - Villetta
Gestione:
Vendita
Superficie:
151 m²
Terrazzi:
4 m²
Locali:
4
Camere:
2
Bagni:
2
Condizioni:
Ristrutturato
Posto Auto:
No
Giardino:
Privato
Ascensore:
No
Piscina:
No
Aria Condizionata:
Cucina:
Abitabile
Riscaldamento:
Autonomo
Classe energetica:
F

Richiedi informazioni


 

 


(info)