Benvenuto in CaseAffittoeVendita!  Accedi | Registrati

140 m² | 4 locali | € 280.000

Richiedi informazioni

 
 



(info)
 

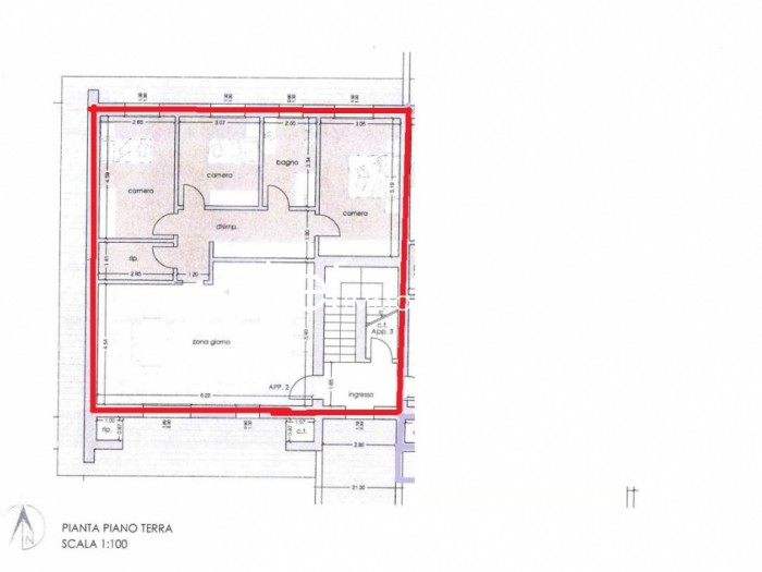
FARRA DI SOLIGO (COL SAN MARTINO) - LB10 SPLENDIDO APPARTAMENTO 3 CAMERE IN FASE DI COSTRUZIONE AL PIANO TERRA CON GIARDINO Proponiamo in vendita splendido appartamento in fase di costruzione che situato in un posizione particolarmente suggestiva che offre una panoramica vista sulle colline inserito in una palazzina di sole 4 unita'. L'abitazione si presenterà con uno stile moderno volto a garantire benessere e comfort, sarà una casa di nuova generazione con un nuovo concept abitativo, che garantirà un'abitazione sana, efficiente e con un'elevata prestazione energetica. L'immobile si sviluppa al piano terra ed e' composta da: ampia e luminosa zona giorno, tre ampie camere, bagno, lavanderia e loggia; garage singolo e giardino. L'unita' sara' termoautonoma, dotata di riscaldamento a pavimento, impianto fotovoltaico da 3 kw/h, pompa di calore, serramenti 3 vetri, cappotto e tetto isolato e ventilato. In classe energetica A4, l'immobile avrà un'elevata resistenza sismica oltre che essere ecosostenibile e rapido da costruire. Le fotografie non rappresentano l'immobile. Se sei interessato/a a questo immobile e vuoi fare una visita o avere maggiori informazioni, puoi contattarci via mail oppure chiamarci al numero 0438 1960226. Nel rispetto della legge sulla privacy l'indirizzo riportato nell'annuncio è indicativo e non corrisponde all'esatta ubicazione dell'immobile. Puoi visionare altre proposte immobiliari consultando direttamente il nostro sito www.lefimmobiliare.it oppure ti aspettiamo in agenzia. La nostra sede si trova in Via Zanzotto n. 15 - Pieve di Soligo (TV) Tel. 0438 1960226 Cell. 342 7786327 www.lefimmobiliare.it info@lefimmobiliare.it Classe Energetica: A4 - IPE: 0.00kWh/mq anno

Tipologia:
Appartamento
Gestione:
Vendita
Superficie:
140 m²
Locali:
4
Camere:
3
Bagni:
1
Condizioni:
Nuovo
Posto Auto:
Box
Giardino:
Privato
Ascensore:
No
Piscina:
No
Aria Condizionata:
Cucina:
Angolo cottura
Riscaldamento:
Autonomo
Classe energetica:
In attesa di comunicazione

Richiedi informazioni


 

 


(info)