Benvenuto in CaseAffittoeVendita!  Accedi | Registrati

122 m² | 4 locali | € 190.000

Richiedi informazioni

 
 



(info)
 

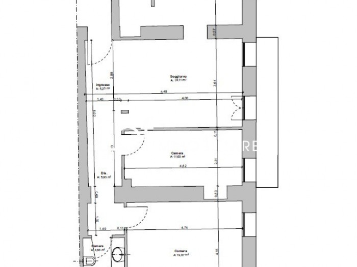
VITTORIO VENETO - AA89 ELEGANTE APPARTAMENTO 2 CAMERE IN PALAZZO DELL' 800 A SERRAVALLE Proponiamo in vendita un appartamento due camere al piano primo inserito in un Palazzo di sole 4 untia'. L'immobile si sviluppa su un piano ed e' composto da cucina, ripostiglio con attacco per lavatrice, soggiorno con terrazzo, ampia camera matrimoniale con affresco, camera singola con armadio a muro e bagno. Completano la proprieta' una cantina al piano terra ed una porzione di soffitta al piano terzo. L'appartamento e' stato ristrutturato nel 2018 internamente ed e' dotato di stufa a pallet. Spese condominiali ridottissime! Viene consegano parzialmente arredato. Da vedere! Se sei interessato/a a questo immobile e desideri richiedere maggiori informazioni o programmare una visita, siamo a tua disposizione via email info@lefimmobiliare.it o al numero di telefono 0438 1960226. Ti informiamo che il nostro annuncio rispetta la legge sulla privacy, pertanto l'indirizzo riportato è puramente indicativo e non corrisponde all'esatta ubicazione dell'immobile. Per consultare altre proposte immobiliari, consigliamo di visitare il nostro sito web www.lefimmobiliare.it o di recarti personalmente presso la nostra agenzia. Siamo a disposizione per fornirti ulteriori dettagli e supportarti nella scelta della soluzione più adatta alle tue esigenze abitative. La nostra sede si trova in Via Zanzotto 15 a Pieve di Soligo (TV). Tel. 0438 1960226 Cell. 342 7786327 www.lefimmobiliare.it info@lefimmobiliare.it Classe Energetica: F - IPE: 152.49kWh/mq anno

Tipologia:
Appartamento
Gestione:
Vendita
Superficie:
122 m²
Terrazzi:
4 m²
Locali:
4
Camere:
2
Bagni:
1
Condizioni:
Ottimo
Posto Auto:
No
Giardino:
Comune
Ascensore:
No
Piscina:
No
Aria Condizionata:
No
Cucina:
Abitabile
Riscaldamento:
Autonomo
Classe energetica:
F (152.49 kWh/m² anno)

Richiedi informazioni


 

 


(info)