Benvenuto in CaseAffittoeVendita!  Accedi | Registrati

150 m² | 6 locali | € 290.000

Richiedi informazioni

 
 



(info)
 

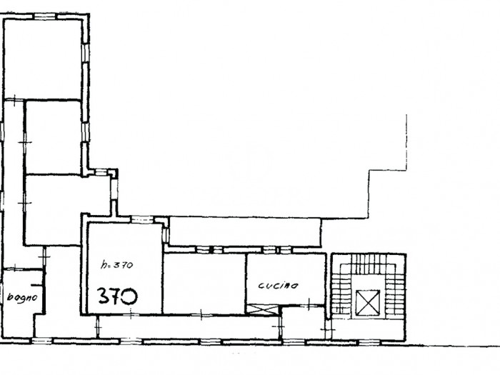
D/CD3816 - In via Mazzini, al terzo piano di un elegante edificio residenziale recentemente ristrutturato, proponiamo in vendita un appartamento di ampia metratura, con doppia esposizione. Protagoniste della proprietà sono senza dubbio le eleganti rifiniture e le numerose vetrate, che valorizzano la luce naturale e donano all'appartamento un'aria accogliente. Internamente segue una pianta regolare, così composto: ingresso, cucina abitabile con terrazzo, studio e ampio soggiorno. La zona notte include tre stanze da letto e un bagno. Questa proprietà, unica nel suo genere, è la soluzione ideale per una clientela amante del centro storico, in una zona centrale, ben collegata e servita e che si distingue per la qualità dell'abitato. A corredo della proprietà cantina al piano terra. Classe Energetica: G - IPE: 0.00kWh/mq anno

Tipologia:
Appartamento
Gestione:
Vendita
Superficie:
150 m²
Terrazzi:
4 m²
Locali:
6
Camere:
3
Bagni:
1
Condizioni:
Buono
Posto Auto:
No
Giardino:
Nessuno
Ascensore:
Piscina:
No
Aria Condizionata:
No
Cucina:
Abitabile
Riscaldamento:
Autonomo
Classe energetica:
G

Richiedi informazioni


 

 


(info)