Benvenuto in CaseAffittoeVendita!  Accedi | Registrati

64 m² | 2 locali | € 218.000

Richiedi informazioni

 
 



(info)
 

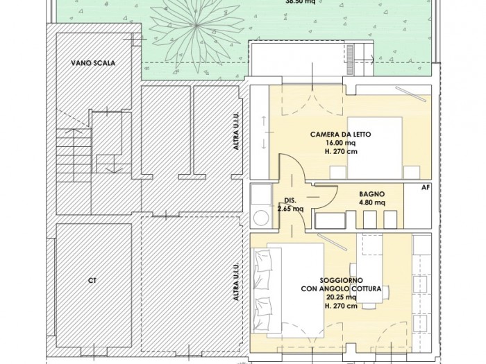
PROPONIAMO A CASALECCHIO DI RENO immobile si trova in Via del Lavoro, a pochi minuti da Centro Meridiana, uno dei principali poli commerciali della zona, e vicino al suggestivo Parco Talon, perfetto per passeggiate, sport e momenti di relax immersi nel verde. Appartamento al piano terra, di 64mq commerciali composto da ingresso su una piccola corte privata di 12mq, soggiorno con angolo cottura, disimpegno, bagno e camera matrimoniale. Completa la proprieta' un giardino di 48mq ed un posto auto in corte privata. La posizione e' particolarmente comoda anche per raggiungere Bologna, grazie ai collegamenti rapidi sia in auto che con i mezzi pubblici, rendendo questa soluzione ideale anche per chi lavora in citta' ma desidera vivere in un contesto piu' tranquillo. Questa soluzione rappresenta un'ottima opportunità sia come prima casa che come investimento, grazie alla posizione strategica, alla presenza di spazi esterni e alla vicinanza a tutti i principali servizi: scuole, supermercati, negozi e vie di comunicazione. Per info: Davide: 3209477119 - d.napolitano@teare.it Classe Energetica: A1 - IPE: 0.00kWh/mq anno

Tipologia:
Appartamento
Gestione:
Vendita
Superficie:
64 m²
Locali:
2
Camere:
1
Bagni:
1
Condizioni:
Ottimo
Posto Auto:
Posto auto
Giardino:
Privato
Ascensore:
No
Piscina:
No
Aria Condizionata:
Cucina:
Angolo cottura
Riscaldamento:
Autonomo
Classe energetica:
In attesa di comunicazione

Richiedi informazioni


 

 


(info)