Benvenuto in CaseAffittoeVendita!  Accedi | Registrati

276 m² | 5 locali | € 120.000

Richiedi informazioni

 
 



(info)
 

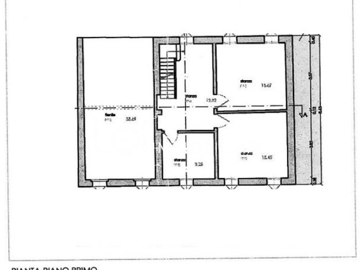
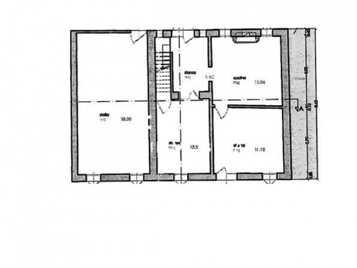
PIEVE DI SOLIGO - AH30 TERRATETTO DA RISTRUTTURARE CON GIARDINO Proponiamo in vendita terrattetto centrale completamente da ristrutturare con giardino di proprieta' di circa 300 mq. L'immobile e' disposto su tre piani fuori terra. La casa e' priva di impianti e non e' abitabile da subito. Per informazioni contatta il numero 342 7786327. Se sei interessato/a a questo immobile e vuoi fare una visita o avere maggiori informazioni, puoi contattarci via mail oppure chiamarci al numero 0438 1960226. Nel rispetto della legge sulla privacy l'indirizzo riportato nell'annuncio è indicativo e non corrisponde all'esatta ubicazione dell'immobile. Puoi visionare altre proposte immobiliari consultando direttamente il nostro sito www.lefimmobiliare.it oppure ti aspettiamo in agenzia. La nostra sede si trova in Via Zanzotto n. 15 - Pieve di Soligo (TV) Classe Energetica: G - IPE: 0.00kWh/mq anno

Tipologia:
Terratetto - Terracielo
Gestione:
Vendita
Superficie:
276 m²
Locali:
5
Camere:
3
Condizioni:
Da Ristrutturare
Posto Auto:
No
Giardino:
Privato
Ascensore:
No
Piscina:
No
Aria Condizionata:
No
Cucina:
Abitabile
Riscaldamento:
Assente
Classe energetica:
G

Richiedi informazioni


 

 


(info)