Benvenuto in CaseAffittoeVendita!  Accedi | Registrati

523 m² | 15 locali | € 1.350.000

Richiedi informazioni

 
 



(info)
 

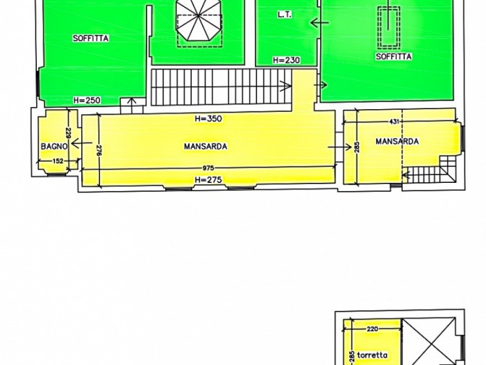
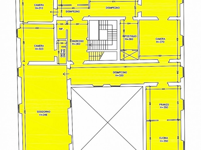
Rif.117 - Splendida porzione di villa (523 mq) del 1.500, sviluppata sull'intero piano primo oltre secondo piano e torretta. L'immobile ha un ampio giardino pianeggiante di proprietà esclusiva al piano terra di 1.500 mq ca. con secondo accesso carrabile privato. La proprietà è completamente recintata e si accede all'immobile tramite viale di accesso a comune con la proprietà al piano terra con giardini e parcheggi dotati di accessi indipendenti e ben divisi. Tramite una corte a comune dove è presente una cantina di proprietà esclusiva si accede al primo piano. L'intero piano libero su quattro lati e con begli affacci sui giardini della villa, si compone di: ampio ingresso con vano guardaroba, galleria con suggestive finestre sul giardino, salone di rappresentanza di 72 mq con camino in marmo, decorato e dotato di quattro finestre, camera/studio completamente decorata con bagno en suite; sala da pranzo collegata con l'ampia cucina. Zona notte composta di ampio disimpegno con grande armadiatura, ripostiglio/lavanderia e caveau; altre quattro camere matrimoniali di cui due con bagno en suite e due con soffitti affrescati, quarto ampio bagno al piano. Dall'ingresso si accede anche al piano secondo dove troviamo l'ampia mansarda luminosissima dotata di numerose finestre, soffitti a travi e mezzane, bagno al piano, locale sottotetto con finestra uso camera, due ampi locali tecnici. Dal corpo principale della mansarda si accede ad un'ulteriore camera/studio configurata come torre caratterizzata da una doppia altezza, doppie finestre e soppalco. La proprietà si presenta in ottimo stato, abitabile sin da subito, caratterizzata da elementi architettonici, decorativi e storici di assoluto pregio; quali affreschi, stucchi, decori, pavimenti in cotto originali, colonne, pietre antiche, porte e infissi in legno massello perfettamente restaurati. Il parco di proprietà esclusiva gode della presenza di un pozzo romano e uno artesiano. La proprietà si presta a numerose soluzioni, può essere utilizzata come abitazione di assoluta rappresentanza o generare un'alta redditività vista l'ampia metratura, il contesto, l'estrema vicinanza all'ospedale di Careggi (raggiungibile a piedi in pochi minuti) ed essendo ben collegata con il centro di Firenze. Richiesta euro 1.350.000,00 - Per maggiori informazioni ed appuntamenti contattare telefonicamente - TEL. 334.23.56.902 - MAIL: vilagiimmobiliare@gmail.com Classe Energetica: non dichiarata

Tipologia:
Villa - Villetta
Gestione:
Vendita
Superficie:
523 m²
Terrazzi:
4 m²
Locali:
15
Camere:
7
Bagni:
5
Condizioni:
Ottimo
Posto Auto:
Posto auto
Giardino:
Privato
Ascensore:
No
Piscina:
No
Aria Condizionata:
No
Riscaldamento:
Autonomo
Classe energetica:
In attesa di comunicazione

Richiedi informazioni


 

 


(info)