Benvenuto in CaseAffittoeVendita!  Accedi | Registrati

260 m² | 8 locali | € 550.000

Richiedi informazioni

 
 



(info)
 

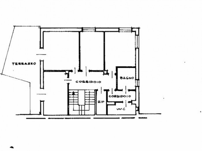
Monteaperti, immerso nel verde della campagna senese ma a pochi km dal centro di Siena, proponiamo in nostra esclusiva di vendita, una porzione di trifamiliare con giardino. La proprietà si sviluppa con l'ingresso indipendente dal cancello privato che ci immette nello splendido e ampio giardino che circonda la casa. Dal piano terra rialzato entriamo nell'ingresso dove si apre subito il bellissimo salone con accesso al terrazzo direttamente collegato al giardino, lo stesso collegamento lo ritroviamo nella cucina , recentemente ristrutturata, completa il piano di ingresso un bagno, un ripostiglio e un locale tecnico dove sono posizionati gli impianti. Una bella e comoda scala ci porta al piano superiore e alla zona notte composta da quattro camere di cui due con accesso diretto ad un ampio terrazzo/solarium, due bagni anche questi recentemente ristrutturati e un ripostiglio completano il piano. Oltre ai posti auto all'interno della proprietà l'offerta comprende un ampio garage di circa 49mq. Ottima proposta per chi ricerca indipendenza unita a grandi spazi interni ed esterni senza privarsi della comodità dei servizi della città che si trova a pochi km di strada a 4 corsie (Siena-Bettolle). Classe Energetica: non dichiarata

Tipologia:
Casa Bi-Trifamiliare
Gestione:
Vendita
Superficie:
260 m²
Terrazzi:
4 m²
Locali:
8
Camere:
4
Bagni:
3
Condizioni:
Buono
Posto Auto:
Rimessa
Giardino:
Privato
Ascensore:
No
Piscina:
No
Aria Condizionata:
No
Cucina:
Abitabile
Riscaldamento:
Autonomo
Classe energetica:
In attesa di comunicazione

Richiedi informazioni


 

 


(info)