Benvenuto in CaseAffittoeVendita!  Accedi | Registrati

106 m² | 4 locali | € 565.000

Richiedi informazioni

 
 



(info)
 

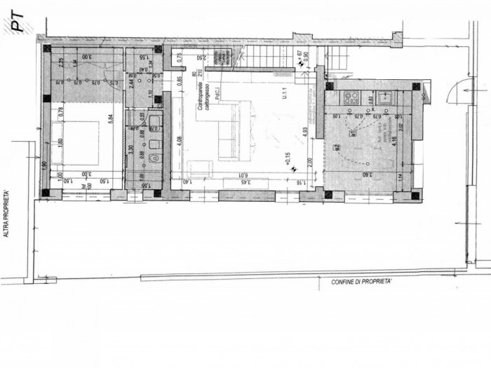
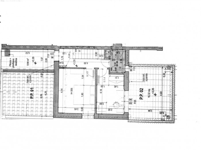
SAN QUIRICO, in strada non trafficata. Nostra Esclusiva. Proponiamo bellissimo terratetto libero su 3 lati di nuova ristrutturazione. L'immobile si sviluppa su 2 livelli. Al piano terreno si accede da ingresso carrabile con resede di 60 mq. utilizzabile anche come posti auto, ampia zona living, cucina, servizio e camera. Al 1° piano volendo disimpegnato dal proprio accesso, camera, studio oltre 2 terrazze abitabili di 25 mq. Termo singolo. Macchina per il riciclo dell'aria condizionata.

Tipologia:
Casa Indipendente
Gestione:
Vendita
Superficie:
106 m²
Terrazzi:
4 m²
Locali:
4
Camere:
2
Bagni:
2
Condizioni:
Nuovo
Posto Auto:
Posto auto
Giardino:
Privato
Ascensore:
No
Piscina:
No
Aria Condizionata:
Cucina:
Abitabile
Riscaldamento:
Autonomo
Classe energetica:
In attesa di comunicazione

Richiedi informazioni


 

 


(info)