Benvenuto in CaseAffittoeVendita!  Accedi | Registrati

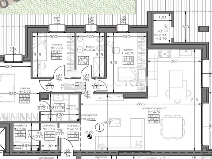
135 m² | 4 locali | € 498.000

Richiedi informazioni

 
 



(info)
 

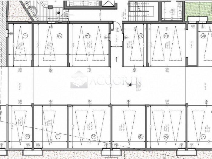
APPARTAMENTO CON GIARDINO IN ZONA CENTRALE PREGIATA A CONEGLIANO -- Classe A4 SM32A1 - In elegante residence di sole 8 unità, proponiamo appartamento al piano terra con ampio giardino privato, in zona centrale semi collinare di pregio. L'immobile, orientato a Sud Est, si compone di: spaziosa zona giorno open space di circa 50 mq con cucina, soggiorno e salotto, tre camere da letto (una matrimoniale, una singola classica e una più ampia), due bagni spaziosi. Possibilità di personalizzare le finiture. Disponibile ampio garage per una/due auto acquistabile a parte. Costruzione ad altissima efficienza energetica (Classe A4) dotata di: Impianto fotovoltaico, Pompa di calore, ventilazione meccanica controllata (VMC) con deumidificazione, riscaldamento e raffrescamento a pavimento, ottimo isolamento termo-acustico. Zona tranquilla e ben servita, a pochi minuti dal centro. Contattaci per planimetrie, capitolato e visite in cantiere! Per info: Sonia 348.7065352 Si intende precisare che gli indirizzi presenti negli annunci non sono identificativi dell'ubicazione precisa dell'immobile, danno un riferimento solo generico della zona al cliente che ricerca, al fine di tutelare la privacy e riservatezza del venditore. Per visionare l'immobile o per ricevere ulteriori informazioni contattateci: 0438.1962179. - Le nostre sedi : Montebelluna (TV) - Maser (TV) - Conegliano (TV) - Jesolo (VE). Classe Energetica: A4 - IPE: 0.00kWh/mq anno

Tipologia:
Appartamento
Gestione:
Vendita
Superficie:
135 m²
Locali:
4
Camere:
3
Bagni:
2
Condizioni:
Nuovo
Posto Auto:
Box
Giardino:
Privato
Ascensore:
Piscina:
No
Aria Condizionata:
No
Cucina:
Angolo cottura
Riscaldamento:
Autonomo
Classe energetica:
In attesa di comunicazione

Richiedi informazioni


 

 


(info)