Benvenuto in CaseAffittoeVendita!  Accedi | Registrati

75 m² | 3 locali | € 130.000

Richiedi informazioni

 
 



(info)
 

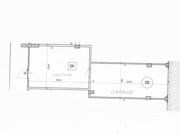
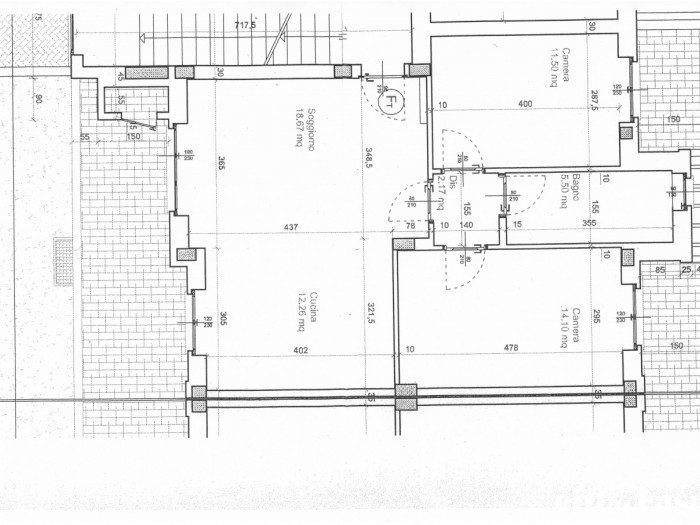
TORRAZZA PIEMONTE, via Traversa Mazzini. In piccola palazzina di recente costruzione (2011), elevata su due piani fuori terra, proponiamo in vendita alloggio trilocale posto al piano terreno con giardino privato, ampia cantina e box auto. L'appartamento è composto da ingresso su soggiorno-cucina, disimpegno, due camere, bagno, due balconi e giardino privato di circa 70 metri quadrati. L'immobile è caratterizzato da serramenti in legno con doppi vetri, tende parasole lato giardino e tende inverno-estate nei due balconi, zanzariere nella zona notte, climatizzazione mono split nella zona giorno. Riscaldamento centralizzato a pavimento contabilizzato. Per visualizzare tutte le foto, collegarsi al sito cittacasa riferimento G789. Per info su questo annuncio rivolgersi all'agenzia di Chivasso, piazza Garibaldi 1/b, 011.913.11.11 Classe Energetica: B - IPE: 58.32kWh/mq anno

Tipologia:
Appartamento
Gestione:
Vendita
Superficie:
75 m²
Locali:
3
Camere:
2
Bagni:
1
Condizioni:
Ottimo
Posto Auto:
Box
Ascensore:
No
Piscina:
No
Aria Condizionata:
Cucina:
Angolo cottura
Riscaldamento:
Centralizzato
Classe energetica:
B (58.32 kWh/m² anno)

Richiedi informazioni


 

 


(info)