Benvenuto in CaseAffittoeVendita!  Accedi | Registrati

115 m² | 6 locali | Tratt. Riservate

Richiedi informazioni

 
 



(info)
 

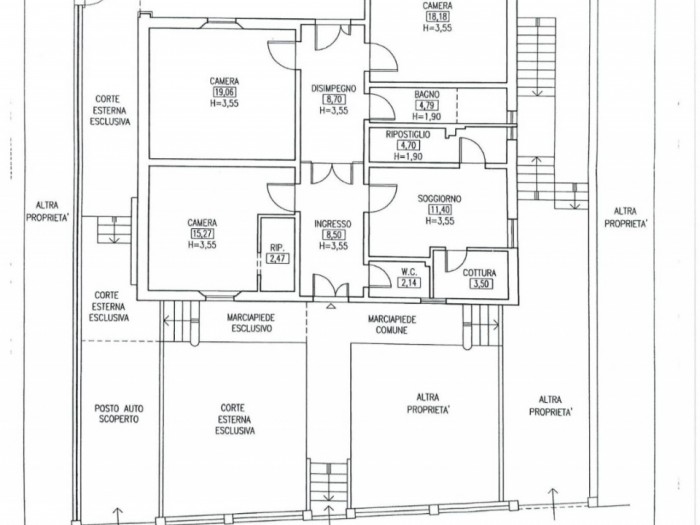
Vendesi appartamento al piano terra in villetta bifamiliare, in Viale Italia, con accesso diretto sulla spiaggia, composto da ampio ingresso, soggiorno con angolo cottura, 3 camere da letto, 2 bagni, 2 ripostigli. Terrazza con accesso al mare. Posto auto e corte privata. L'appartamento si trova in zona centrale, in ottima posizione. Ideale come investimento per affitti brevi. Possibilità anche di dividerlo in 2 unità immobiliari.

Tipologia:
Villa - Villetta
Gestione:
Vendita
Superficie:
115 m²
Terrazzi:
4 m²
Locali:
6
Camere:
3
Bagni:
2
Condizioni:
Buono
Posto Auto:
Posto auto
Ascensore:
No
Piscina:
No
Aria Condizionata:
No
Cucina:
Abitabile
Riscaldamento:
Autonomo
Classe energetica:
In attesa di comunicazione

Richiedi informazioni


 

 


(info)