Benvenuto in CaseAffittoeVendita!  Accedi | Registrati

175 m² | 7 locali | € 750.000

Richiedi informazioni

 
 



(info)
 

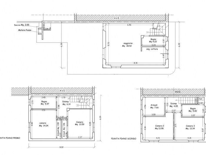
A 800 metri dal mare, Villetta bifamiliare come nuova in tranquillo contesto di Marina di Pietrasanta. Disposta su due livelli oltre ampio e comodo piano mansarda. Oltre 170 mq con ampia zona giorno con affaccio su gradevole e comoda veranda attrezzata, cucina a vista con zona pranzo e servizio a piano terra - quattro ampie camere, vano armadi e ulteriori due servizi ai piano superiori. Buone condizioni generali con buone finiture sia interne che esterne. Giardino esclusivo sui tre lati liberi con vari posti auto. PER INFORMAZIONI TELEFONARE A SILVANA TEL. 393/9713541. Classe Energetica: G - IPE: 207.76kWh/mq anno

Tipologia:
Casa Bi-Trifamiliare
Gestione:
Vendita
Superficie:
175 m²
Terrazzi:
4 m²
Locali:
7
Camere:
5
Bagni:
3
Condizioni:
Ristrutturato
Posto Auto:
Posto auto
Giardino:
Privato
Ascensore:
No
Piscina:
No
Aria Condizionata:
Cucina:
Angolo cottura
Riscaldamento:
Autonomo
Classe energetica:
G (207.76 kWh/m² anno)

Richiedi informazioni


 

 


(info)