Benvenuto in CaseAffittoeVendita!  Accedi | Registrati

79 m² | 2 locali | € 212.700

Richiedi informazioni

 
 



(info)
 

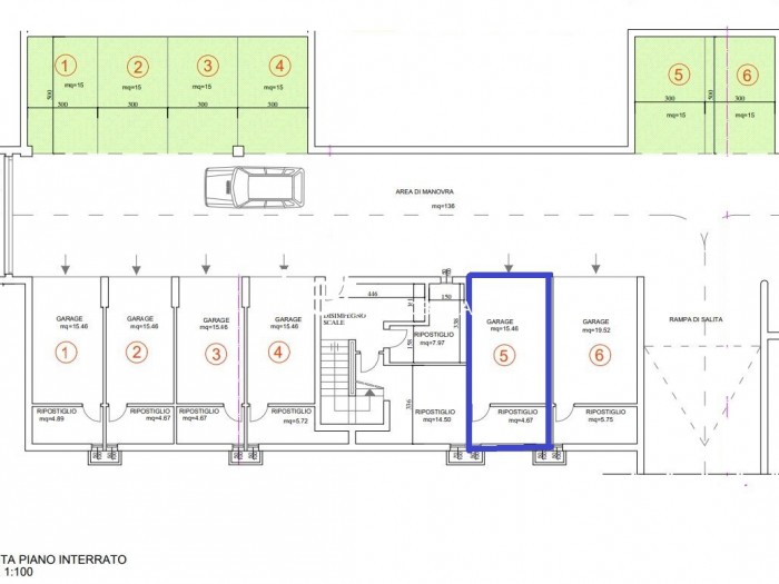
CORDIGNANO (PINIDELLO) - AA82 IN COSTRUZIONE APPARTAMENTO 1 CAMERE E RIPOSTIGLIO AL PIANO PRIMO Proponiamo questo nuovo intervento residenziale, situato nelle immediate vicinanze dei principali servizi, ATTUALMENTE IN COSTRUZIONE; il progetto prevede la realizzazione di un residence composto da soli sei appartamenti, che ti permetterà una vita confortevole in un ambiente moderno ad alta efficienza energetica! L'appartamento si trova al piano primo ed è disposto su un unico piano piu' il garage e la cantina al piano interrato. ### Dettagli dell'immobile: **Superficie**: L'immobile è composto da: Soggiorno-pranzo Camera matrimoniale Ripostiglio Bagno **Esterni**: Terrazzo **Garage**: Presente un garage con cantina e possibilità di acquistare un ulteriore posto auto coperto. ### Caratteristiche tecniche: Riscaldamento a pavimento con pompa di calore Impianto fotovoltaico da 3,3 Kw Isolamento con cappotto Predisposizione per impianto di raffrescamento e di allarme ### Consegna e personalizzazione: L'immobile sarà consegnato "chiavi in mano", con la possibilità di personalizzare le finiture interne. Sarà certificato in "Classe A4", garantendo un elevato comfort abitativo e un'efficienza energetica ottimale. Le immagini sono a scopo illustrativo e non rappresentano l'immobile in oggetto; le planimetrie ed i prospetti corrispondono all'immobile Per maggiori informazioni, planimetrie o capitolato, non esitate a contattarci! Se sei interessato/a a questo immobile e desideri richiedere maggiori informazioni o programmare una visita, siamo a tua disposizione via email info@lefimmobiliare.it o al numero di telefono 0438 1960226. Ti informiamo che il nostro annuncio rispetta la legge sulla privacy, pertanto l'indirizzo riportato è puramente indicativo e non corrisponde all'esatta ubicazione dell'immobile. Per consultare altre proposte immobiliari, consigliamo di visitare il nostro sito web www.lefimmobiliare.it o di recarti personalmente presso la nostra agenzia. Siamo a disposizione per fornirti ulteriori dettagli e supportarti nella scelta della soluzione più adatta alle tue esigenze abitative. La nostra sede si trova in Via Zanzotto 15 a Pieve di Soligo (TV). Tel. 0438 1960226 Cell. 342 7786327 www.lefimmobiliare.it info@lefimmobiliare.it Classe Energetica: A4 - IPE: 4.09kWh/mq anno

Tipologia:
Appartamento
Gestione:
Vendita
Superficie:
79 m²
Terrazzi:
4 m²
Locali:
2
Camere:
1
Bagni:
1
Condizioni:
Nuovo
Posto Auto:
Box
Giardino:
Nessuno
Ascensore:
No
Piscina:
No
Aria Condizionata:
No
Cucina:
Angolo cottura
Riscaldamento:
Autonomo
Classe energetica:
In attesa di comunicazione

Richiedi informazioni


 

 


(info)