Benvenuto in CaseAffittoeVendita!  Accedi | Registrati

53 m² | 2 locali | € 185.000

Richiedi informazioni

 
 



(info)
 

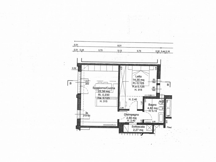
MARINA DI RAVENNA CENTRALISSIMO: in fase di completa ristrutturazione a nuovo con prossima consegna per la primavera 2026, vendiamo appartamento con ingresso indipendente al piano terra, composto da: ampio soggiorno con zona pranzo, camera matrimoniale, ripostiglio, zona lavanderia, bagno, oltre a piccola porzione di giardino comune, di pertinenza. - Cappotto - Aria condizionata - Infissi a triplo vetro - Tapparelle motorizzate - Predisposizione allarme - Sgravi fiscali. No spese condominiali. Cl energetica in corso EURO 185.000 Classe Energetica: immobile non soggetto a classificazione

Tipologia:
Appartamento Indipendente
Gestione:
Vendita
Superficie:
53 m²
Locali:
2
Camere:
1
Bagni:
1
Condizioni:
Ristrutturato
Giardino:
Comune
Ascensore:
No
Piscina:
No
Aria Condizionata:
Cucina:
Angolo cottura
Riscaldamento:
Autonomo
Classe energetica:
esente

Richiedi informazioni


 

 


(info)