175 Kwh/mq annuo - dati in attesa di certificazione. Prezzo: euro55.000. info@sardahousing.com - www.sardahousing.com Classe Energetica: G - IPE: 0.00kWh/mq anno">

Benvenuto in CaseAffittoeVendita!  Accedi | Registrati

Nel centro storico di Santu Lussurgiu, antico borgo della Sardegna centro-occidentale, vi proponiamo una particolare casa storica ristrutturata in parte.

135 m² | 5 locali | € 55.000

Richiedi informazioni

 
 



(info)
 

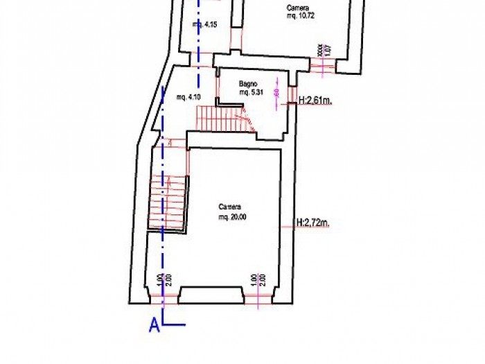
Casa La Volta -- in centro storico, una dimora storica unica nel suo genere --- Casa La Volta è situata in via Roma, nel centro storico del borgo, proprio all'altezza della partenza di "Sa Carrela e Nanti", la famosa manifestazione equestre del carnevale di Santu Lussurgiu. Si tratta di un'abitazione molto caratteristica nel suo genere, poiché si sviluppa su tre livelli, ma è costituita da due unità immobiliari unite al piano superiore da una volta che attraversa un vicolo retrostante. La casa ha un'ottima esposizione, e al suo interno, 135 mq, troviamo la cucina, il soggiorno, il salotto, tre camere, un bagno e la cantina. La struttura, anch'essa caratteristica della zona, è in pietra, i solai sono in legno già ristrutturati, in parte, e in parte da recuperare. Interessanti sono anche alcuni importanti cornicioni in pietra scolpita, e alcune inferriate di ferro battuto inserite negli archi in pietra e nelle ringhiere. Una parte della copertura è stata rifatta nel 2019 con tavolato e coibentazione in sughero (da 18 cm), un'altra parte è da ristrutturare. Il progetto di ristrutturazione è già approvato, e la concessione edilizia, in corso di validità fino a marzo 2021, è rinnovabile. A lavori ultimati Casa La Volta sarà in possesso di tutti i requisiti per ottenere il certificato di abitabilità. Santu Lussurgiu è un affascinante borgo storico del Montiferru nella Sardegna centro-occidentale, a metà strada tra Oristano e Bosa, a 30 km circa dalle spiagge della costa occidentale. E' un paese che conserva nell'architettura la memoria del passato e, protetto da lussureggianti foreste, custodisce il tesoro di una miriade di sorgenti. Classe energetica G. IPE > 175 Kwh/mq annuo - dati in attesa di certificazione. Prezzo: euro55.000. info@sardahousing.com - www.sardahousing.com Classe Energetica: G - IPE: 0.00kWh/mq anno

Tipologia:
Casa affiancata
Gestione:
Vendita
Superficie:
135 m²
Locali:
5
Camere:
3
Bagni:
1
Condizioni:
Da Ristrutturare
Posto Auto:
No
Giardino:
Nessuno
Ascensore:
No
Piscina:
No
Aria Condizionata:
No
Cucina:
Abitabile
Riscaldamento:
Assente
Classe energetica:
G

Richiedi informazioni


 

 


(info)