Benvenuto in CaseAffittoeVendita!  Accedi | Registrati

95 m² | 5 locali | € 220.000

Richiedi informazioni

 
 



(info)
 

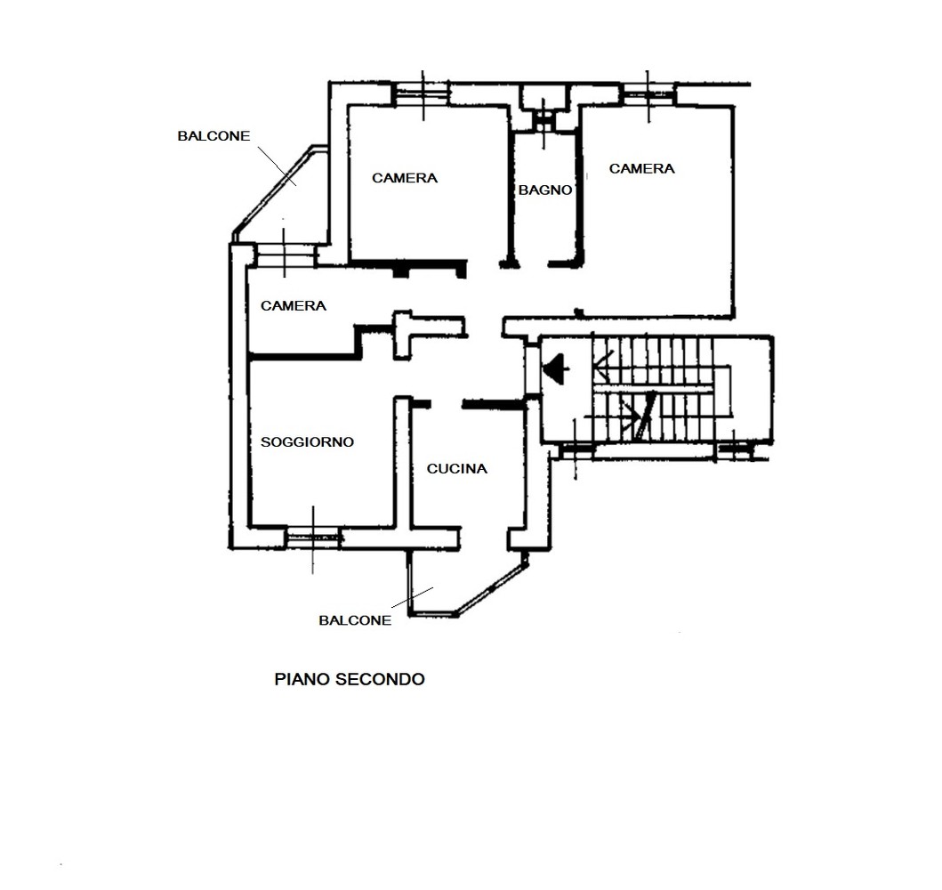
In Via del Pacchia, quartiere del Petriccio, vendesi al piano secondo ed ultimo di condominio diviso in se unità, appartamento di 95 mq divisi tra ingresso, cucina con balcone, soggiorno, due camera matrimoniali, una camera singola con balcone e bagno finestrato oltre ad una cantina. Utenze autonome. Internamente è stato rinnovato solo in alcune parti ma non ristrutturato completamente; tetto e facciata ristrutturate nel 2021. Per informazioni 338 5495159 Classe Energetica: G - IPE: 0.00kWh/mq anno

Tipologia:
Appartamento
Gestione:
Vendita
Superficie:
95 m²
Locali:
5
Camere:
3
Bagni:
1
Ascensore:
No
Piscina:
No
Aria Condizionata:
No
Riscaldamento:
Autonomo
Classe energetica:
G

Richiedi informazioni


 

 


(info)