Benvenuto in CaseAffittoeVendita!  Accedi | Registrati

205 m² | 8 locali | € 420.000

Richiedi informazioni

 
 



(info)
 

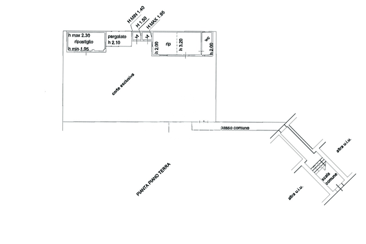
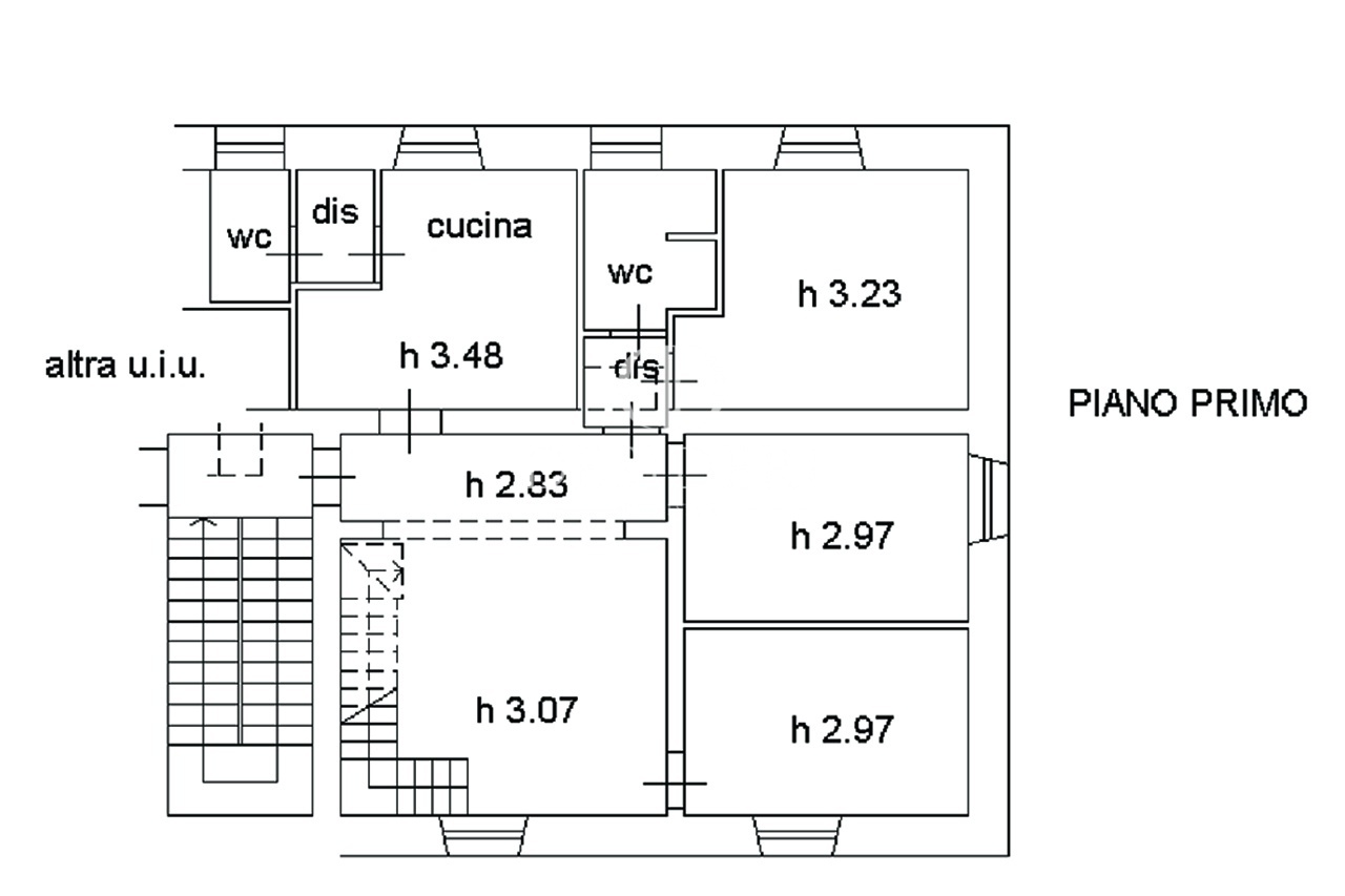
D/CD3788 - In una delle zone più dinamiche e richieste di Grosseto, dove gli spazi aperti privati sono un vero lusso, proponiamo in vendita un elegante ed esclusivo appartamento completamente ristrutturato con giardino privato di 250 mq., ideale per chi cerca un ambiente moderno, luminoso e dal carattere unico. La superficie è molto ampia (166 mq) e ben distribuita con una zona living molto grande, a seguire cucina abitabile con lavanderia e bagno di servizio, 3 camere da letto ampie e un bagno con finestra; al piano superiore un bellissimo locale da destinare a Hobby o relax. Le grandi vetrate regalano molta luce in tutte le parti della casa e gli ambienti sono tutti di ampio respiro, comodi e funzionali; assolutamente unico il giardino privato perfetto per relax e cene all'aperto con due comodi ripostigli e dependance. Soluzione perfetta per un'abitazione esclusiva in una zona in forte crescita. L'appartamento è finemente ristrutturato a nuovo, con coibentazione del solaio e del sottotetto, con vetri insonorizzanti e termici. Classe Energetica: immobile non soggetto a classificazione

Tipologia:
Appartamento
Gestione:
Vendita
Superficie:
205 m²
Locali:
8
Camere:
4
Bagni:
4
Condizioni:
Ottimo
Posto Auto:
No
Giardino:
Privato
Ascensore:
No
Piscina:
No
Aria Condizionata:
Cucina:
Abitabile
Riscaldamento:
Autonomo
Classe energetica:
esente

Richiedi informazioni


 

 


(info)