Benvenuto in CaseAffittoeVendita!  Accedi | Registrati

190 m² | 3 locali | € 270.000

Richiedi informazioni

 
 



(info)
 

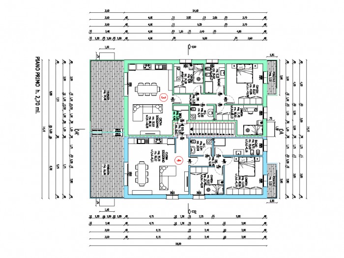
ROVOLON: Il nuovo complesso residenziale è composto da quattro appartamenti distribuiti su due livelli. ( in vendita 3 appartamenti) Al piano terra si trovano due unità abitative con ingresso indipendente e giardino esclusivo, ciascuna composta da un soggiorno con angolo cottura, due camere da letto e doppi servizi. Al primo piano sono presenti altre due unità con accesso da scala comune, una composta da soggiorno con angolo cottura, due camere da letto e due bagni, l'altra con soggiorno e cucina separati, due o tre camere da letto e doppi servizi. L'intero lotto sarà completamente recintato, con la realizzazione di cancelli carrabili e pedonali per garantire sicurezza e praticità. È previsto un cancello pedonale comune per le unità del primo piano, un cancello pedonale esclusivo per le unità al piano terra e due ingressi carrabili dedicati a ciascuna proprietà. Questa soluzione abitativa è pensata per offrire il massimo del comfort, della funzionalità e della privacy in un contesto moderno e ben organizzato. L'appuntamento presso l'immobile verrà fissato previo incontro conoscitivo in agenzia. Per motivi di privacy, l'indirizzo riportato nell'annuncio è puramente indicativo della zona, non è la posizione esatta dell'immobile. Prezzo : da 270.000,00 a 285.000,00 RIF: 5103 Classe Energetica: A4 - IPE: 18.23kWh/mq anno

Tipologia:
Appartamento
Gestione:
Vendita
Superficie:
190 m²
Locali:
3
Camere:
1
Bagni:
1
Condizioni:
Nuovo
Posto Auto:
Box
Ascensore:
No
Piscina:
No
Aria Condizionata:
No
Cucina:
Angolo cottura
Riscaldamento:
Autonomo
Classe energetica:
In attesa di comunicazione

Richiedi informazioni


 

 


(info)