Benvenuto in CaseAffittoeVendita!  Accedi | Registrati

250 m² | € 173.000

Richiedi informazioni

 
 



(info)
 

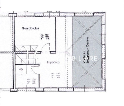
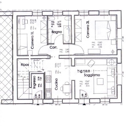
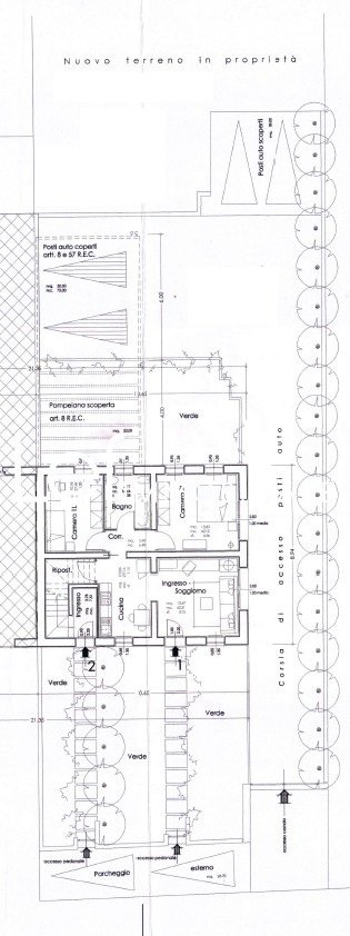
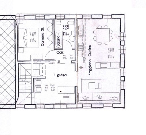
SERNAGLIA DELLA BATTAGLIA (FALZE' DI PIAVE) - AH59 TERRATETTO DI TESTA AL GREZZO CON DUE UNITA' ABITATIVE ED AMPIO GIARDINO Proponiamo in vendita un terratetto attualmente allo stato grezzo progettato per ricavare due appartamenti con giardino e posti auto coperti. L'abitazione si trova in campagna ed e' stata oggetto di ristrutturazione nel 2009 e necessita di essere ultimata. L'immobile e' disposto su due piani fuori terra ed e' cosi' composto: al piano terra un appartamento con cucina, soggiorno, ripostiglio, bagno e due camere; al piano primo e secondo un appartamento con cucina soggiorno, ingresso, bagno e camera, ulteriori stanze nel soppalco dove poter ricavare altre camere. Completa la proprieta' il giardino di circa 850 mq con possibilità di ricavare dei posti auto coperti e scoperti. Da vedere! Se sei interessato/a a questo immobile e desideri richiedere maggiori informazioni o programmare una visita, siamo a tua disposizione via email info@lefimmobiliare.it o al numero di telefono 0438 1960226. Ti informiamo che il nostro annuncio rispetta la legge sulla privacy, pertanto l'indirizzo riportato è puramente indicativo e non corrisponde all'esatta ubicazione dell'immobile. Per consultare altre proposte immobiliari, consigliamo di visitare il nostro sito web www.lefimmobiliare.it o di recarti personalmente presso la nostra agenzia. Siamo a disposizione per fornirti ulteriori dettagli e supportarti nella scelta della soluzione più adatta alle tue esigenze abitative. La nostra sede si trova in Via Zanzotto 15 a Pieve di Soligo (TV). Tel. 0438 1960226 Cell. 342 7786327 www.lefimmobiliare.it info@lefimmobiliare.it Classe Energetica: immobile non soggetto a classificazione

Tipologia:
Terratetto - Terracielo
Gestione:
Vendita
Superficie:
250 m²
Camere:
6
Bagni:
2
Condizioni:
Da Ristrutturare
Posto Auto:
Rimessa
Giardino:
Privato
Ascensore:
No
Piscina:
No
Aria Condizionata:
No
Cucina:
Abitabile
Riscaldamento:
Assente
Classe energetica:
esente

Richiedi informazioni


 

 


(info)