Benvenuto in CaseAffittoeVendita!  Accedi | Registrati

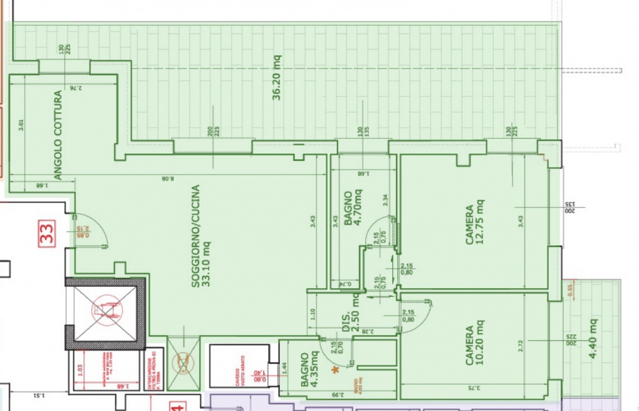
Alloggio ultimo piano con terrazzi e predisposizione piscina privata

190 m² | 4 locali | € 632.000

Richiedi informazioni

 
 



(info)
 

Alloggio con piscina privata! In posizione pianeggiante e comoda a tutti i servizi, a soli 800 metri dal lungomare, tra Via Dante e Via del Sagittario. Residenza di nuova realizzazione in edificio antisismico, privo di barriere architettoniche, in classe energetica A++. Proponiamo quadrilocale al quarto ed ultimo piano, composto da: soggiorno, due camere da letto, due bagni, ampio terrazzo al piano (38 mq) e terrazzo di copertura (70 mq) collegato direttamente all'appartamento con ascensore privato e piscina privata. Finiture di alto livello. Disponibili alloggi di varie metrature, tutti con terrazzi. Pronto per la consegna immediata. Non è compresa nel prezzo l'autorimessa che è disponibile a parte. Classe Energetica: A1 - IPE: 0.00kWh/mq anno

Tipologia:
Appartamento
Gestione:
Vendita
Superficie:
190 m²
Terrazzi:
4 m²
Locali:
4
Camere:
2
Bagni:
2
Condizioni:
Nuovo
Posto Auto:
Box
Giardino:
Nessuno
Ascensore:
Piscina:
No
Aria Condizionata:
Riscaldamento:
Autonomo
Classe energetica:
In attesa di comunicazione

Richiedi informazioni


 

 


(info)