Benvenuto in CaseAffittoeVendita!  Accedi | Registrati

200 m² | 4 locali | € 550.000

Richiedi informazioni

 
 



(info)
 

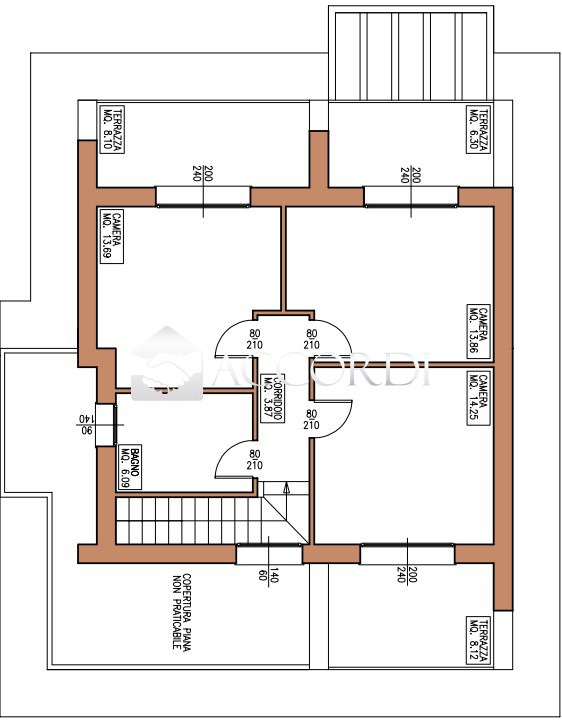
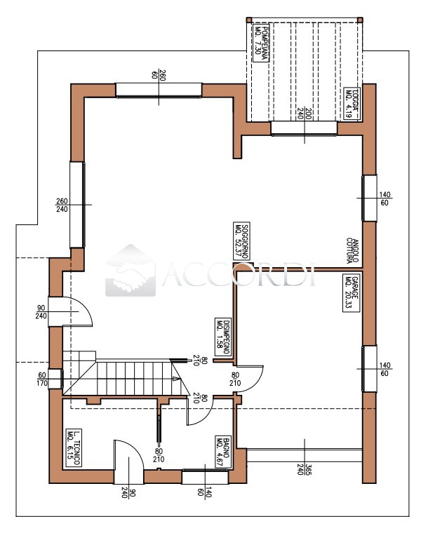
CASA SINGOLA NUOVA COSTRUZIONE A CARBONERA SM51A1 --In zona tranquilla e a pochi passi da tutti i principali servizi, proponiamo in vendita una casa singola di nuova costruzione, progettata per offrire comfort, efficienza e spazi funzionali. La zona giorno, situata al piano terra, comprende un ampio open space di 55 mq con accesso diretto al pergolato esterno ideale per pranzi all'aperto e al giardino privato. Sullo stesso livello sono presenti anche un disimpegno, un wc e un locale tecnico. La zona notte, collocata al primo piano, ospita una grande camera matrimoniale con cabina armadio, due spaziose camere singole e un bagno. Dotazioni di alto livello: riscaldamento a pavimento con pompa di calore, impianto fotovoltaico, aria condizionata, tende oscuranti elettriche, sensori d'allarme e zanzariere. Completano la proprietà un garage chiuso e un posto auto esterno. Classe energetica A4. Consegna prevista per fine 2026. Possibilità di personalizzazione sulla distribuzione degli spazi e sulle finiture. Per info: Sonia 348.7065352 Si intende precisare che gli indirizzi presenti negli annunci non sono identificativi dell'ubicazione precisa dell'immobile, danno un riferimento solo generico della zona al cliente che ricerca, al fine di tutelare la privacy e riservatezza del venditore. Per visionare l'immobile o per ricevere ulteriori informazioni contattateci: 0438.1962179. - Le nostre sedi : Montebelluna (TV) - Maser (TV) - Conegliano (TV) - Jesolo (VE). Classe Energetica: A4 - IPE: 0.00kWh/mq anno

Tipologia:
Casa Indipendente
Gestione:
Vendita
Superficie:
200 m²
Terrazzi:
4 m²
Locali:
4
Camere:
3
Condizioni:
Nuovo
Posto Auto:
Box
Giardino:
Privato
Ascensore:
No
Piscina:
No
Aria Condizionata:
Riscaldamento:
Autonomo
Classe energetica:
In attesa di comunicazione

Richiedi informazioni


 

 


(info)