Benvenuto in CaseAffittoeVendita!  Accedi | Registrati

193 m² | 7 locali | Tratt. Riservate

Richiedi informazioni

 
 



(info)
 

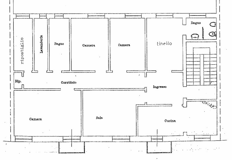
ZONA TRENTO TRIESTE. A pochi passi da Porta Trento Trieste, in un bel palazzo di soli due appartamenti , vendesi grande appartamento di mq 193, ristrutturato recentemente, posto al piano secondo. Ingresso ampio, grande cucina con camino e balcone, sala tv, sala da pranzo con balcone, due camere matrimoniali, una maxi matrimoniale con aria condiz. e balcone,1 bagno con vasca e finestra, ripostiglio, 1 bagno/lavanderia. Termo singolo. No ascensore. Nessuna spesa condominiale. Tutta la palazzina è stata oggetto di intervento edilizio, privatamente e con super bonus: cappotto esterno, avvolgibili e infissi nuovi, tetto nuovo in legno, impianto fotovoltaico di 7kw totali con 1 batteria di accumulo, facciata nuova. Completano la proprietà un garage di ca.50 mq (attualmente di mq.100 accatastato come C/3)e piccola cantina piano terra. Colonna per auto elettrica . Immobile bello e molto grande , centrale , come nuovo , si presta a civile abitazione , a struttura ricettiva o RSA (in vendita anche intero palazzo)- Trattativa riservata - Info e prezzi in agenzia - RIF F17 Classe Energetica: non dichiarata

Tipologia:
Appartamento
Gestione:
Vendita
Superficie:
193 m²
Locali:
7
Camere:
4
Bagni:
2
Condizioni:
Ristrutturato
Posto Auto:
Rimessa
Giardino:
Nessuno
Ascensore:
No
Piscina:
No
Aria Condizionata:
Cucina:
Abitabile
Riscaldamento:
Autonomo
Classe energetica:
In attesa di comunicazione

Richiedi informazioni


 

 


(info)