Benvenuto in CaseAffittoeVendita!  Accedi | Registrati

155 m² | 4 locali | € 285.000

Richiedi informazioni

 
 



(info)
 

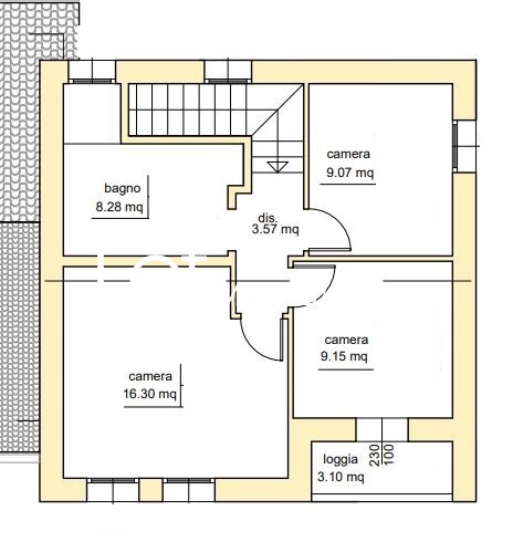
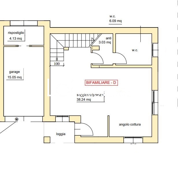
CORDIGNANO (PINIDELLO) - VILLA BIFAMILIARE CON GIARDINO AL GREZZZO AVANZATO Proponiamo in vendita villa bifamiliare con giardino situata in una tranquilla zona residenziale attualmente allo stato grezzo avanzato completa di serramenti. L'abitazione si sviluppa su due livelli ed e' cosi' composta: al piano terra soggiorno-pranzo, bagno; al piano primo tre camere e bagno; completano la proprietà il garage con cantina ed il giardino. La casa e' dotata di isolamento con cappotto e serramenti con triplo vetro. Si può acquistare la casa finita "chiavi in mano" al prezzo di euro 355.000. Per maggiori informazioni contattaci! Se sei interessato/a a questo immobile e desideri richiedere maggiori informazioni o programmare una visita, siamo a tua disposizione via email info@lefimmobiliare.it o al numero di telefono 0438 1960226. Ti informiamo che il nostro annuncio rispetta la legge sulla privacy, pertanto l'indirizzo riportato è puramente indicativo e non corrisponde all'esatta ubicazione dell'immobile. Per consultare altre proposte immobiliari, consigliamo di visitare il nostro sito web www.lefimmobiliare.it o di recarti personalmente presso la nostra agenzia. Siamo a disposizione per fornirti ulteriori dettagli e supportarti nella scelta della soluzione più adatta alle tue esigenze abitative. La nostra sede si trova in Via Zanzotto 15 a Pieve di Soligo (TV). Tel. 0438 1960226 Cell. 342 7786327 www.lefimmobiliare.it info@lefimmobiliare.it Classe Energetica: A4 - IPE: 0.00kWh/mq anno

Tipologia:
Casa Bi-Trifamiliare
Gestione:
Vendita
Superficie:
155 m²
Terrazzi:
4 m²
Locali:
4
Camere:
3
Bagni:
2
Condizioni:
Nuovo
Posto Auto:
Box
Giardino:
Privato
Ascensore:
No
Piscina:
No
Aria Condizionata:
No
Cucina:
Angolo cottura
Riscaldamento:
Autonomo
Classe energetica:
In attesa di comunicazione

Richiedi informazioni


 

 


(info)