Benvenuto in CaseAffittoeVendita!  Accedi | Registrati

116 m² | 6 locali | € 310.000

Richiedi informazioni

 
 



(info)
 

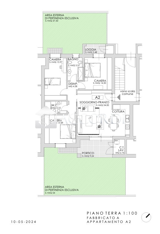
JS009_2 - Appartamento piano terra alle porte di Conegliano Nel contesto tranquillo e ordinato di un nuovo residence a Susegana, a pochi minuti da Conegliano e avvolto dai paesaggi morbidi dei Colli del Prosecco, nasce l'appartamento A2: una soluzione moderna e raffinata, concepita per chi desidera vivere in un ambiente confortevole e ben distribuito, senza rinunciare alla vicinanza ai servizi e alla qualità del territorio. L'abitazione, situata al piano terra con doppio giardino di pertinenza esclusiva, offre spazi armoniosi, luminosi e perfettamente organizzati. Il soggiorno-pranzo, ampio e accogliente, si affaccia direttamente sul portico e sull'area verde privata, creando una continuità naturale tra interno ed esterno. È un ambiente pensato per condividere la quotidianità, accogliere ospiti e godere di un'atmosfera rilassante in ogni stagione. La cucina, separata ma connessa visivamente al living, è studiata per garantire praticità e ordine. Le aperture verso l'esterno permettono alla luce naturale di definire gli ambienti con calore e profondità, rendendo ogni momento trascorso in casa piacevole e armonico. La zona notte, ben distinta e riservata, accoglie tre camere da letto dalle metrature generose. Ogni stanza è concepita per offrire comodità e flessibilità: lo spazio ideale per una famiglia, per chi lavora da casa o per chi desidera un ambiente dedicato agli ospiti. Due bagni, entrambi finestrati, garantiscono funzionalità e comfort quotidiano. Completano l'appartamento una loggia coperta, un comodo disimpegno che ottimizza gli spazi e un locale tecnico-lavanderia, elementi che valorizzano l'organizzazione domestica e aggiungono praticità alla vita di tutti i giorni. All'esterno, i due giardini privati definiscono una cornice verde riservata e vivibile: il luogo perfetto per cene all'aperto, momenti di tranquillità, giochi per i bambini o semplicemente per godersi il silenzio del quartiere. Per info: Julia 3455080296 Si intende precisare che gli indirizzi presenti negli annunci non sono identificativi dell'ubicazione precisa dell'immobile, danno un riferimento solo generico della zona al cliente che ricerca, al fine di tutelare la privacy e riservatezza del venditore. Per visionare l'immobile o per ricevere ulteriori informazioni contattateci: 0438.1962179. - Le nostre sedi : Montebelluna (TV) - Maser (TV) - Conegliano (TV) - Jesolo (VE). Classe Energetica: A4 - IPE: 0.00kWh/mq anno

Tipologia:
Appartamento
Gestione:
Vendita
Superficie:
116 m²
Locali:
6
Camere:
3
Bagni:
2
Condizioni:
Nuovo
Posto Auto:
Box
Giardino:
Privato
Ascensore:
No
Piscina:
No
Aria Condizionata:
Cucina:
Abitabile
Riscaldamento:
Autonomo
Classe energetica:
In attesa di comunicazione

Richiedi informazioni


 

 


(info)