Benvenuto in CaseAffittoeVendita!  Accedi | Registrati

120 m² | 6 locali | € 310.000

Richiedi informazioni

 
 



(info)
 

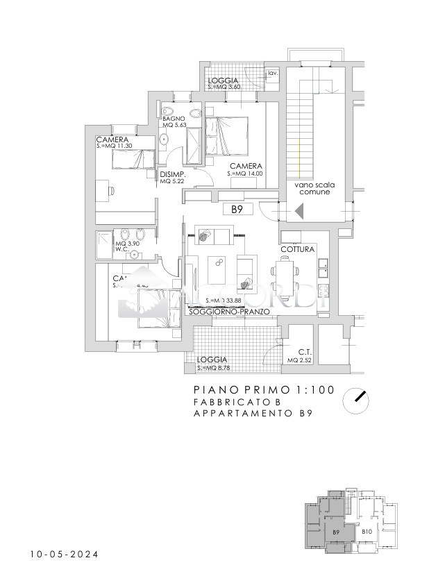
JS009_6 - Appartamento primo piano alle porte di Conegliano L'appartamento si trova al primo piano di un residence di nuova realizzazione, situato in una zona tranquilla e ben collegata di Susegana. Il contesto è quello tipico dei Colli del Prosecco, un paesaggio armonioso e riconosciuto per la sua bellezza, dove natura, silenzio e qualità della vita convivono con la comodità dei servizi vicini e la prossimità a Conegliano. L'ingresso dell'abitazione conduce a un soggiorno-pranzo ampio e raffinato, caratterizzato da una distribuzione degli spazi che favorisce convivialità e comfort. La zona giorno, luminosa e ben proporzionata, si apre su una loggia coperta che diventa uno spazio esterno da vivere: un angolo ideale per momenti di relax, per una cena all'aria aperta o per accogliere gli ospiti in un ambiente protetto e piacevole. Accanto al living si sviluppa la cucina, organizzata con attenzione alla funzionalità e pensata per un utilizzo pratico e quotidiano. La zona notte si distingue per un'ottima distribuzione degli ambienti. Le tre camere da letto, luminose e ben definite, permettono molteplici configurazioni: una stanza padronale comoda e riservata, una camera per bambini o ragazzi, uno studio o una camera ospiti, adattandosi con facilità alle esigenze della famiglia. I due bagni, entrambi finestrati, completano la zona notte garantendo comfort e praticità nell'uso quotidiano. Il disimpegno centrale organizza il percorso interno, valorizzando la privacy e favorendo una fruizione ordinata e funzionale degli spazi. La presenza del locale tecnico-lavanderia aggiunge un ulteriore elemento di comodità, ideale per gestire al meglio le attività domestiche. Le logge presenti su entrambi i lati dell'abitazione permettono alla luce naturale di attraversare gli ambienti durante tutta la giornata, creando atmosfere calde e accoglienti e ampliando la percezione dello spazio. Questo immobile rappresenta una soluzione abitativa ideale per chi desidera vivere in un contesto nuovo, silenzioso e ben curato, immerso nella bellezza dei Colli del Prosecco ma al tempo stesso vicino ai servizi principali. Un luogo in cui architettura moderna, comfort e armonia del territorio si incontrano per offrire un'esperienza di vita completa e gratificante. Per info: Julia 3455080296 Si intende precisare che gli indirizzi presenti negli annunci non sono identificativi dell'ubicazione precisa dell'immobile, danno un riferimento solo generico della zona al cliente che ricerca, al fine di tutelare la privacy e riservatezza del venditore. Per visionare l'immobile o per ricevere ulteriori informazioni contattateci: 0438.1962179. - Le nostre sedi : Montebelluna (TV) - Maser (TV) - Conegliano (TV) - Jesolo (VE). Classe Energetica: A4 - IPE: 0.00kWh/mq anno

Tipologia:
Appartamento
Gestione:
Vendita
Superficie:
120 m²
Terrazzi:
4 m²
Locali:
6
Camere:
3
Bagni:
2
Condizioni:
Nuovo
Posto Auto:
Box
Giardino:
Nessuno
Ascensore:
No
Piscina:
No
Aria Condizionata:
Cucina:
Abitabile
Riscaldamento:
Autonomo
Classe energetica:
In attesa di comunicazione

Richiedi informazioni


 

 


(info)