Benvenuto in CaseAffittoeVendita!  Accedi | Registrati

140 m² | 4 locali | € 380.000

Richiedi informazioni

 
 



(info)
 

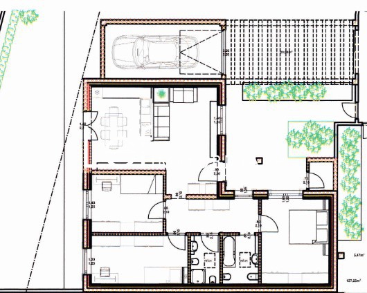
CORDIGNANO (PINIDELLO) - LH03 VILLA SCHIERA CON GIARDINO DA REALIZZARE SU PROGETTO Proponiamo in vendita villetta a schiera da realizzare inserita all'interno di una zona residenziale a Pinidello, frazione di Cordignano. L'immobile è disposta su un unico piano ed è così composta: cucina soggiorno,disimpegno, tre camere, due bagni e cantina. Completa la proprietà un garage e un giardino. Impianto autonomo con caldaia a condensazione con canna fumaria. Riscaldamento autonomo a pavimento. Pannelli fotovoltaici in copertura per 3kw. L'immobile verrà consegnato con finiture come da capitolato chiavi in mano. Classe immobile A3. Per informazion contatta il numero 342 7786327. Se sei interessato/a a questo immobile e vuoi fare una visita o avere maggiori informazioni, puoi contattarci via mail oppure chiamarci al numero 0438 1960226. Nel rispetto della legge sulla privacy l'indirizzo riportato nell'annuncio è indicativo e non corrisponde all'esatta ubicazione dell'immobile. Puoi visionare altre proposte immobiliari consultando direttamente il nostro sito www.lefimmobiliare.it oppure ti aspettiamo in agenzia. La nostra sede si trova in Via Zanzotto n. 15 - Pieve di Soligo (TV) Classe Energetica: A3 - IPE: 0.00kWh/mq anno

Tipologia:
Villetta a schiera
Gestione:
Vendita
Superficie:
140 m²
Locali:
4
Camere:
3
Condizioni:
Nuovo
Posto Auto:
Rimessa
Giardino:
Privato
Ascensore:
No
Piscina:
No
Aria Condizionata:
No
Cucina:
Angolo cottura
Riscaldamento:
Autonomo
Classe energetica:
In attesa di comunicazione

Richiedi informazioni


 

 


(info)