Benvenuto in CaseAffittoeVendita!  Accedi | Registrati

150 m² | 5 locali | € 365.000

Richiedi informazioni

 
 



(info)
 

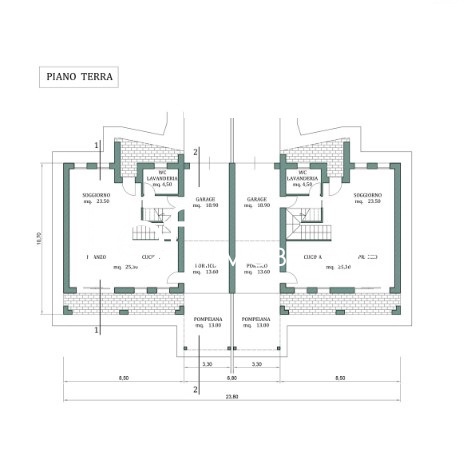
FARRA DI SOLIGO - LB08 BIFAMILIARE DI PROSSIMA COSTRUZIONE Proponiamo in vendita bifamiliare di prossima costruzione in zona residenziale a Farra di Soligo nella frazione di Col San Martino. L'abitazione si presenterà con uno stile moderno volto a garantire benessere e comfort. L'immobile si svilupperà su due livelli: al piano terra la zona giorno composta da cucina, ampio soggiorno e sala da pranzo, e bagno; al piano primo tre camere matrimoniali, disimpegno e bagno. La proprietà godrà di un giardino privato, portico e garage. L'unità sarà termoautonoma, dotata di riscaldamento a pavimento e impianti fotovoltaici. Di classe energetica A4, l'immobile avrà un'elevata resistenza sismica oltre che ad essere ecosostenibile e rapido da costruire. Metodo di costruzione: Steelconcrete. Possibilità di personalizzazione interna e di fornitura dell'arredamento in base alle esigenze di ognuno. Si precisa che le fotografie sono a solo scopo illustrativo. Da vedere! Se sei interessato/a a questo immobile e vuoi fare una visita o avere maggiori informazioni, puoi contattarci via mail oppure chiamarci al numero 0438 1960226. Nel rispetto della legge sulla privacy l'indirizzo riportato nell'annuncio è indicativo e non corrisponde all'esatta ubicazione dell'immobile. Puoi visionare altre proposte immobiliari consultando direttamente il nostro sito www.lefimmobiliare.it oppure ti aspettiamo in agenzia. La nostra sede si trova in Via Zanzotto n. 15 - Pieve di Soligo (TV) Classe Energetica: A4 - IPE: 0.00kWh/mq anno

Tipologia:
Casa Bi-Trifamiliare
Gestione:
Vendita
Superficie:
150 m²
Locali:
5
Camere:
3
Bagni:
2
Condizioni:
Nuovo
Posto Auto:
Box
Giardino:
Privato
Ascensore:
No
Piscina:
No
Aria Condizionata:
Cucina:
Angolo cottura
Riscaldamento:
Autonomo
Classe energetica:
In attesa di comunicazione

Richiedi informazioni


 

 


(info)