Benvenuto in CaseAffittoeVendita!  Accedi | Registrati

66 m² | 4 locali | € 220.000

Richiedi informazioni

 
 



(info)
 

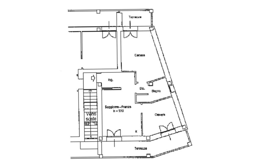
Posto al primo ed ultimo piano di fabbricato realizzato nel 2017 in perfette condizioni interne ed esterne, vendesi appartamento di 66 mq divisi tra soggiorno con angolo cottura ed ampia terrazza, disimpegno, camera matrimoniale con altra terrazza, camera singola e bagno finestrato. Completo di posto auto coperto, posto auto scoperto e cantina. Utenze autonome, impianti a norma, impianto di climatizzazione caldo/freddo e riscaldamento a pavimento. Ingresso per sole due unità abitative, spese condominiali irrisorie pari ad euro 20 al mese Per informazioni 338 5495159 Classe Energetica: G - IPE: 0.00kWh/mq anno

Tipologia:
Appartamento
Gestione:
Vendita
Superficie:
66 m²
Locali:
4
Camere:
2
Bagni:
1
Posto Auto:
Posto auto
Ascensore:
No
Piscina:
No
Aria Condizionata:
Riscaldamento:
Autonomo
Classe energetica:
G

Richiedi informazioni


 

 


(info)