Benvenuto in CaseAffittoeVendita!  Accedi | Registrati

150 m² | 5 locali | € 350.000

Richiedi informazioni

 
 



(info)
 

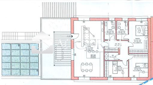
RIF. 83_C - Zona collinare di Conegliano Davvero unico questo attico con terrazza panoramica di circa 38mq, ideale per godersi momenti di relax con una vista mozzafiato. Situato al primo piano di un complesso di sole 3 unità, è totalmente indipendente ed inserito in una zona collinare di pregio. Il luminoso soggiorno/salotto affaccia sull'ampia terrazza, vi è poi la zona pranzo/cucina; disimpegno, tre camere (una matrimoniale e due singole), cabina armadio, due bagni finestrati. Dispone anche di un garage singolo (20mq) e due posti auto scoperti, oltre ad un giardino privato di circa 280mq. Riscaldamento (autonomo) e raffrescamento a pavimento, impianto di deumidificazione; pannelli fotovoltaici 4,5 Kw. Classe A4. Consegna: estate 2026. Il prezzo indicato è chiavi-in-mano (tuttora possibile personalizzare alcuni interni). Da vedere! Per info, dettagli e visite contatta: Daniela 3293032500 (planimetrie e capitolato disponibili in Agenzia). Si intende precisare che gli indirizzi presenti negli annunci non sono identificativi dell'ubicazione precisa dell'immobile, danno un riferimento solo generico della zona al cliente che ricerca, al fine di tutelare la privacy e riservatezza del venditore. Per visionare l'immobile o per ricevere ulteriori informazioni contattateci: . - Le nostre sedi: Montebelluna (TV) - Maser (TV) - Conegliano (TV) - Jesolo (VE). Classe Energetica: A4 - IPE: 0.00kWh/mq anno

Tipologia:
Attico - Mansarda
Gestione:
Vendita
Superficie:
150 m²
Locali:
5
Camere:
3
Bagni:
2
Condizioni:
Nuovo
Posto Auto:
Box
Giardino:
Privato
Ascensore:
No
Piscina:
No
Aria Condizionata:
No
Cucina:
Abitabile
Riscaldamento:
Autonomo
Classe energetica:
In attesa di comunicazione

Richiedi informazioni


 

 


(info)