Benvenuto in CaseAffittoeVendita!  Accedi | Registrati

65 m² | 3 locali | € 100.000

Richiedi informazioni

 
 



(info)
 

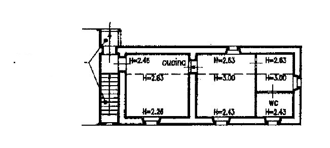
LOC. GRAGNONE IN POSIZIONE PANORAMICA PROPONIAMO IN VENDITA PORZIONE DI CASA IN PIETRA COMPLETAMENTE DA RISTRUTTURARE . L'IMMOBILE E' COMPOSTO DA INGRESSO DA SCALE CONDOMINIALI,INGRESSO SU CUCINA/PRANZO/SOGGIORNO , CAMERA MATRIMONIALE,BAGNO E STANZA PLURIUSO PER UN TOTALE DI 65MQ. A PIANO TERRA TROVIAMO TRE LOCALI CANTINA ,E UN LOCALE DEPOSITO DI 28MQ. COMPLETANO LA PROPRIETA' VARI APPEZZAMENTI DI TERRENO E OLIVETA PER UN TOTALE DI ETTARI 1,7. RIF. G 10 €100.000 Classe Energetica: non dichiarata

Tipologia:
Terratetto - Terracielo
Gestione:
Vendita
Superficie:
65 m²
Locali:
3
Camere:
1
Bagni:
1
Condizioni:
Da Ristrutturare
Posto Auto:
No
Giardino:
Privato
Ascensore:
No
Piscina:
No
Aria Condizionata:
No
Cucina:
Abitabile
Riscaldamento:
Assente
Classe energetica:
In attesa di comunicazione

Richiedi informazioni


 

 


(info)