Benvenuto in CaseAffittoeVendita!  Accedi | Registrati

180 m² | 4 locali | € 165.000

Richiedi informazioni

 
 



(info)
 

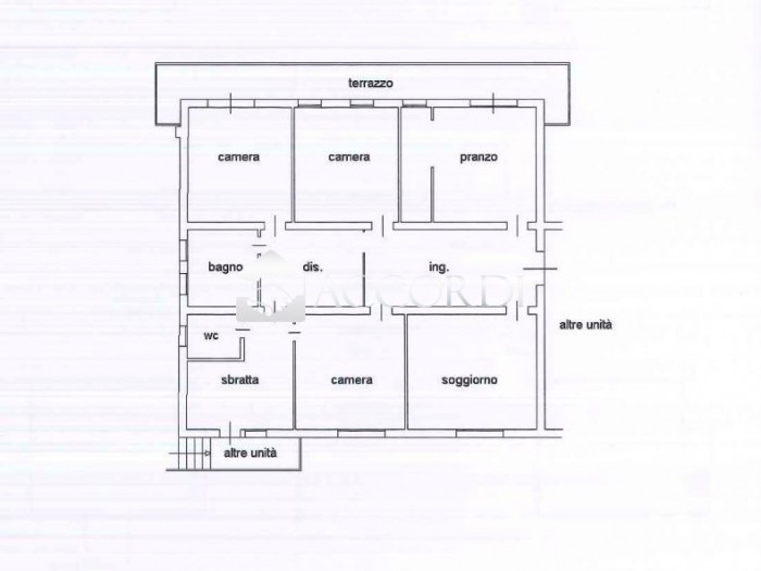
Rif. GA22 - APPARTAMENTO CON TRE CAMERE SENZA SPESE CONDOMINIALI - Conegliano zona Lourdes In posizione strategica, comoda a tutti i principali servizi, proponiamo in vendita un appartamento dagli spazi generosi inserito in un immobile composto da sole due unità abitative e un negozio al piano terra. L'abitazione, con ingresso indipendente e assenza totale di spese condominiali, si sviluppa interamente al primo piano e offre ambienti ampi e luminosi: un soggiorno spazioso, una comoda cucina con zona pranzo, due bagni finestrati, tre grandi camere matrimoniali, un ampio disimpegno e un locale disbrigo/lavanderia (attualmente adibito a cucinotto). Completano la proprietà una cantina e un garage al piano interrato, oltre ad uno spazio verde ideale per momenti di relax. Si intende precisare che gli indirizzi presenti negli annunci non sono identificativi dell'ubicazione precisa dell'immobile, danno un riferimento solo generico della zona al cliente che ricerca, al fine di tutelare la privacy e riservatezza del venditore. Per visionare l'immobile o per ricevere ulteriori informazioni contattateci: 0438 1962179. - Le nostre sedi : Montebelluna (TV) - Maser (TV) - Conegliano (TV) - Villorba (TV) - Jesolo (VE). Classe Energetica: G - IPE: 0.00kWh/mq anno

Tipologia:
Appartamento
Gestione:
Vendita
Superficie:
180 m²
Terrazzi:
4 m²
Locali:
4
Camere:
3
Bagni:
2
Condizioni:
Buono
Posto Auto:
Box
Giardino:
Privato
Ascensore:
No
Piscina:
No
Aria Condizionata:
No
Cucina:
Abitabile
Riscaldamento:
Autonomo
Classe energetica:
G

Richiedi informazioni


 

 


(info)