Benvenuto in CaseAffittoeVendita!  Accedi | Registrati

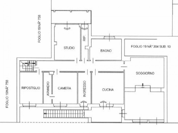
Spaziosa casa con due box auto e magazzino disposta su 2 piani oltre a sottotetto (non abitabile). Il Piano terra è composto da una taverna, uno spazioso vano rustico ed un servizio; al piano primo si trova l' alloggio principale composto sa doppio i

235 m² | 6 locali | € 135.000

Richiedi informazioni

 
 



(info)
 

Spaziosa casa con due box auto e magazzino In zona centrale, proponiamo caratteristica casa disposta su due piani oltre a sottotetto (non abitabile). Il Piano terra è composto da una taverna, uno spazioso vano rustico ed un servizio; al piano primo si trova l' alloggio principale composto sa doppio ingresso, cucina, salone, 3 vani, bagno. Due balconi. Al piano terra è collocato un magazzino di 40 mq. Cortle privato, due box auto e cantina. La proprietà è ottimamente tenuta, il riscaldamento è tramite caldaia a metano. Gli infissi sono in legno e doppio vetro. Classe Energetica: G - IPE: 196.54kWh/mq anno

Tipologia:
Casa Indipendente
Gestione:
Vendita
Superficie:
235 m²
Locali:
6
Camere:
3
Bagni:
2
Condizioni:
Buono
Posto Auto:
Rimessa
Ascensore:
No
Piscina:
No
Aria Condizionata:
No
Cucina:
Abitabile
Riscaldamento:
Autonomo
Classe energetica:
G (196.54 kWh/m² anno)

Richiedi informazioni


 

 


(info)