Benvenuto in CaseAffittoeVendita!  Accedi | Registrati

In zona semicentrale, piccola palazzina libera su tre lati composta da due alloggi indipendenti, precisamente piano terra attualmente affittato a € 250 mensili composto da cucina, soggiorno, camera, bagno e antibagno; Piano primo attualmente libero c

120 m² | 6 locali | € 70.000

Richiedi informazioni

 
 



(info)
 

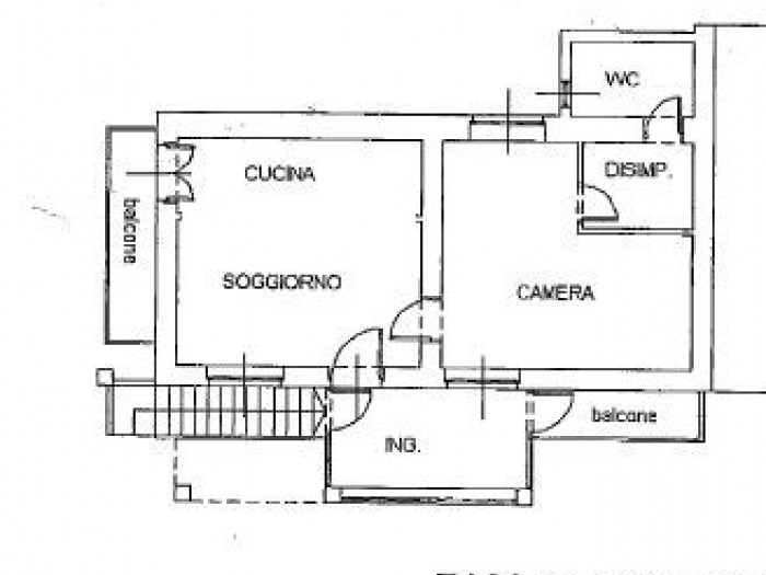
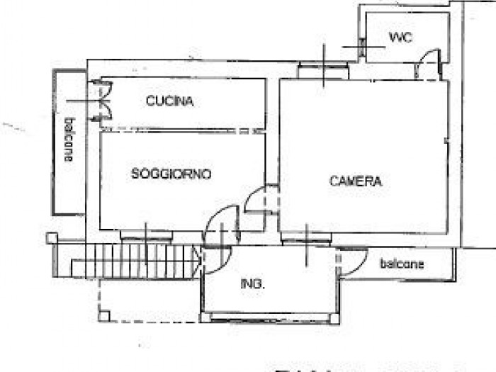
Palazzina di due alloggi e cortile privato. In zona semicentrale, piccola palazzina libera su tre lati composta da due alloggi indipendenti, precisamente piano terra attualmente affittato a € 250 mensili composto da cucina, soggiorno, camera, bagno e antibagno; Piano primo attualmente libero composto da ingresso, soggiorno e cucina in ambiente unico, camera, disimpegno, bagno. Con due balconi e cortile privato. Gli alloggi sono abitabili in buono stato. Possibilità di acquistare a parte uno o due box auto prezzo a parte. Classe Energetica: G - IPE: 274.83kWh/mq anno

Tipologia:
Casa Indipendente
Gestione:
Vendita
Superficie:
120 m²
Locali:
6
Camere:
2
Bagni:
2
Condizioni:
Abitabile
Ascensore:
No
Piscina:
No
Aria Condizionata:
No
Cucina:
Abitabile
Riscaldamento:
Autonomo
Classe energetica:
G (274.83 kWh/m² anno)

Richiedi informazioni


 

 


(info)