Benvenuto in CaseAffittoeVendita!  Accedi | Registrati

Libero su 4 lati proponiamo ampio cascinale da ristrutturare composto da: abitazione su due livelli oltre a cantina e sottotetto (mq commerciali 260 circa), tettoia di 78 mq circa, magazzino con portico di 33 mq circa, box auto di 37 mq circa, altro

277 m² | 10 locali | € 105.000

Richiedi informazioni

 
 



(info)
 

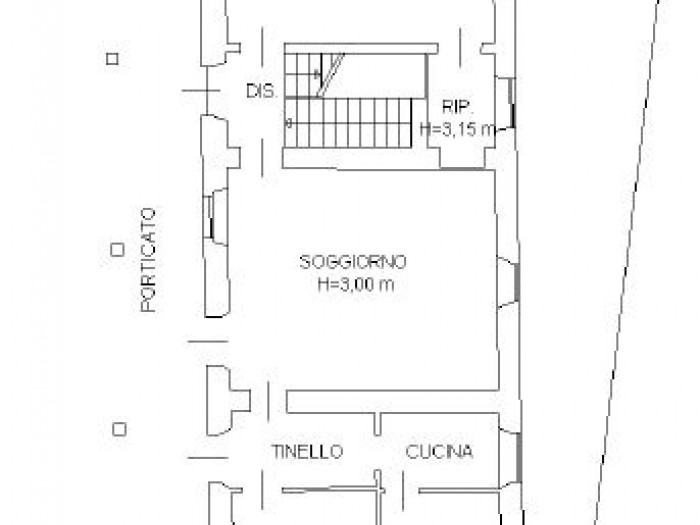
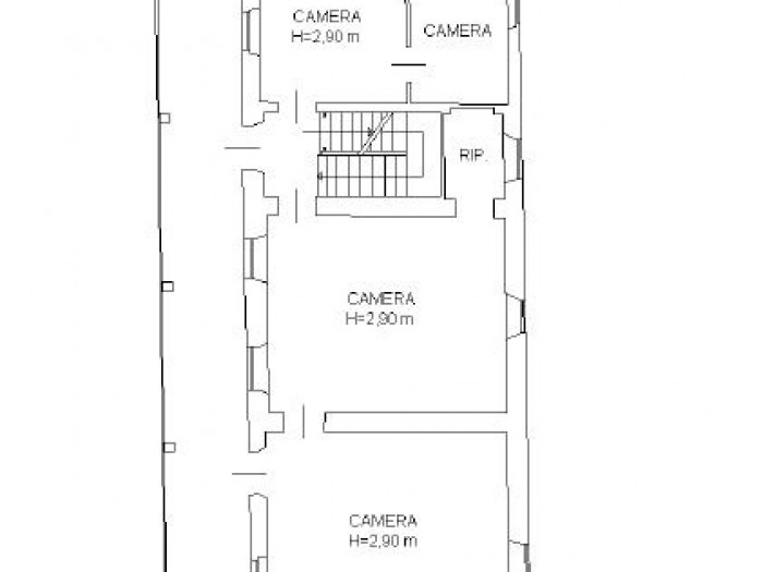
CASCINA CON TERRENO ANTISTANTE Libero su 4 lati proponiamo ampio cascinale da ristrutturare composto da: abitazione su due livelli oltre a cantina e sottotetto (mq commerciali 260 circa), tettoia di 78 mq circa, magazzino con portico di 33 mq circa, box auto di 37 mq circa, altro magazzino parallelo al abitazione. Il cortile è spazioso e la proprietà è arricchita da un terreno antistante di 3810 mq. La copertura del abitazione è in buono stato, ma anche tutte le atre ad eccezzione di una piccola parte della tettoia. NB nei mq citati sul suto non compaio quelli delle varie pertinenze. I Classe Energetica: G - IPE: 431.35kWh/mq anno

Tipologia:
Casa Indipendente
Gestione:
Vendita
Superficie:
277 m²
Locali:
10
Camere:
7
Bagni:
1
Condizioni:
Da Ristrutturare
Ascensore:
No
Piscina:
No
Aria Condizionata:
No
Cucina:
Cucinotto
Riscaldamento:
Assente
Classe energetica:
G (431.35 kWh/m² anno)

Richiedi informazioni


 

 


(info)