Benvenuto in CaseAffittoeVendita!  Accedi | Registrati

125 m² | 7 locali | € 188.000

Richiedi informazioni

 
 



(info)
 

**Appartamento con vista in Vendita a Sestri Ponente **

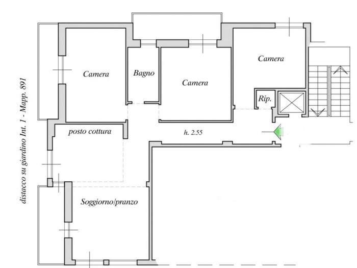
Scopri questo splendido appartamento completamente ristrutturato, situato al terzo piano di un palazzo dotato di ascensore. Con una superficie calpestabile di 125 mq, offre spazi ampi e luminosi, ideali per chi cerca comfort e modernità. L'ingresso conduce a un doppio salone con cucina in open space, perfetto per momenti di convivialità. Le tre camere da letto garantiscono spazio e privacy, mentre il bagno e la dispensa completano la zona notte.
Goditi la vista mare dai tre balconi vivibili, un vero lusso per rilassarsi all'aperto. Il riscaldamento autonomo e l'impianto di climatizzazione assicurano il massimo benessere in ogni stagione. Inoltre, L'appartamento ha a disposizione posto auto in affitto. Non perdere l'occasione di vivere in un ambiente esclusivo e raffinato! Per ulteriori informazioni contattateci. Classe Energetica: D - IPE: 233.00kWh/mq anno

Tipologia:
Appartamento
Gestione:
Vendita
Superficie:
125 m²
Locali:
7
Camere:
3
Bagni:
1
Condizioni:
Ristrutturato
Ascensore:
Piscina:
No
Aria Condizionata:
Cucina:
Abitabile
Riscaldamento:
Autonomo
Classe energetica:
D (233.00 kWh/m² anno)

Richiedi informazioni


 

 


(info)