Benvenuto in CaseAffittoeVendita!  Accedi | Registrati

516 m² | 13 locali | € 415.000

Richiedi informazioni

 
 



(info)
 

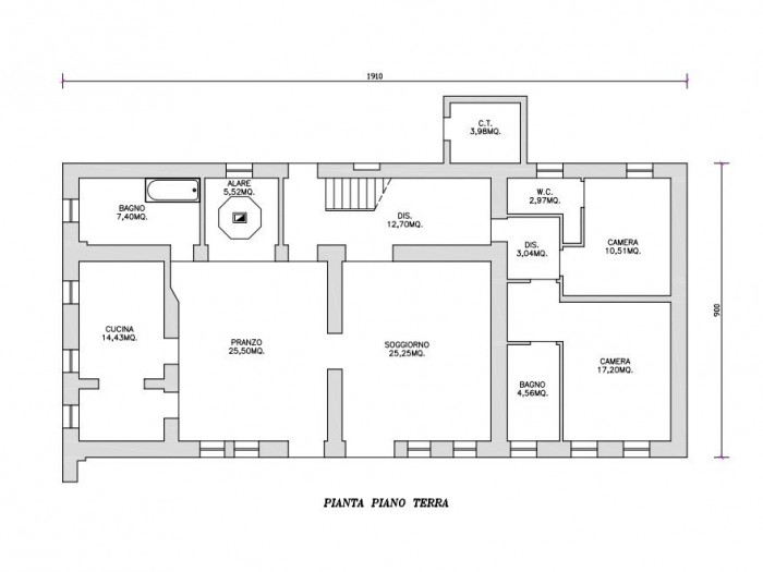
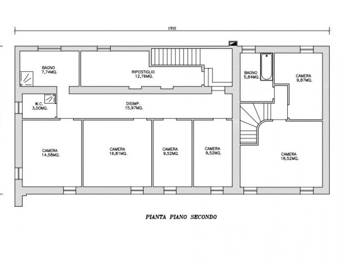
REVINE LAGO - AR03 INCANTEVOLE CASALE CIRCONDATO DA 11500 MQ DI TERRENI Proponiamo in vendita casale in splendido contesto collinare con terreni con vista panoramica L'immobile si sviluppa su tre livelli ed è costituito da DUE UNITA' abitative; l'edificio pricipale e' composto da: al piano terra cucina, pranzo, soggiorno, 2 camere e 3 bagni, centale termica e garage; al piano primo 3 camere grandi e 2 bagni; al piano secondo 4 camere 2 bagni ed un ripostiglio. La seconda unita' e' composta da cucina soggiorno, 1 bagno e 2 camere. Completano la proprieta' i terreni agricoli per mq 10758 in parte seminativo ed in parte prato e 756 mq di pertinenza dell'abitazione. Certificazione energetica unita' 1 Classe E - unita' 2 Classe C. Posizione collinare!! Per informazioni contatta il 342 7786327 Se sei interessato/a a questo immobile e desideri richiedere maggiori informazioni o programmare una visita, siamo a tua disposizione via email info@lefimmobiliare.it o al numero di telefono 0438 1960226. Ti informiamo che il nostro annuncio rispetta la legge sulla privacy, pertanto l'indirizzo riportato è puramente indicativo e non corrisponde all'esatta ubicazione dell'immobile. Per consultare altre proposte immobiliari, consigliamo di visitare il nostro sito web www.lefimmobiliare.it o di recarti personalmente presso la nostra agenzia. Siamo a disposizione per fornirti ulteriori dettagli e supportarti nella scelta della soluzione più adatta alle tue esigenze abitative. La nostra sede si trova in Via Zanzotto 15 a Pieve di Soligo (TV). Tel. 0438 1960226 Cell. 342 7786327 www.lefimmobiliare.it info@lefimmobiliare.it Classe Energetica: E - IPE: 181.51kWh/mq anno

Tipologia:
Rustico - Casolare - Colonica
Gestione:
Vendita
Superficie:
516 m²
Terrazzi:
4 m²
Locali:
13
Camere:
9
Bagni:
8
Condizioni:
Buono
Posto Auto:
Box
Giardino:
Privato
Ascensore:
No
Piscina:
No
Aria Condizionata:
No
Cucina:
Abitabile
Riscaldamento:
Autonomo
Classe energetica:
E (181.51 kWh/m² anno)

Richiedi informazioni


 

 


(info)