Benvenuto in CaseAffittoeVendita!  Accedi | Registrati

75 m² | 4 locali | € 750.000

Richiedi informazioni

 
 



(info)
 

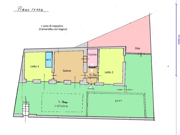
StudioMusco vende ad Anacapri Villino indipendente centralissimo con ampio esterno attrezzato. A pochi passi da Piazza Caprile, piccolo villino indipendente con ampio esterno. Perfettamente ristrutturato e ben tenuto, ha una ampia zona giorno, due camere da letto, due bagni, cucina e vari disimpegni. Il salone pranzo come la camera da letto principale, ha ampie volte, con grandi superfici vetrate che danno sul terrazzo antistante. Dalla seconda camera o studio accediamo ad una comoda area soppalcata, luminosa e vivibile. L' esterno è particolarmente curato, con varie zone ombreggiate, allestite con tavoli, sedie, divani. E' presente una cisterna sotto il terrazzo cui attinge il pozzo. Piccola dependance in terrazzo. L' immobile è in posizione invidiabile, a pochi passi da tutti i servizi essenziali, autobus, taxi, parcheggio motorini, ma risulta assolutamente tranquillo e silenzioso non affacciando direttamente sulle rumorose strade carrabili. Prezzo molto interessante per una rapida definizione. Per altre info o concordare una visita tel o wap 338.85.53.351. Classe Energetica: G - IPE: 141.00kWh/mq anno

Tipologia:
Appartamento
Gestione:
Vendita
Superficie:
75 m²
Terrazzi:
4 m²
Locali:
4
Camere:
2
Bagni:
2
Condizioni:
Buono
Posto Auto:
No
Giardino:
Nessuno
Ascensore:
No
Piscina:
No
Aria Condizionata:
Riscaldamento:
Autonomo
Classe energetica:
G (141.00 kWh/m² anno)

Richiedi informazioni


 

 


(info)