Benvenuto in CaseAffittoeVendita!  Accedi | Registrati

421 m² | 12 locali | € 2.450.000

Richiedi informazioni

 
 



(info)
 

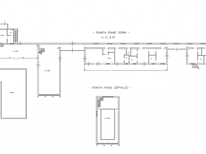
D/CD3514 - L'agenzia immobiliare "Desideri" propone in vendita in esclusiva una incantevole proprietà nelle campagne tra Pescia Romana e Pescia Fiorentina, limitrofe all'ambita Capalbio, meta per chi desidera soggiornare e vivere in un'oasi di pace circondata da bellezze naturalistiche e culturali. Il terreno circostante ha una metratura totale di 8.5HA, con circa 250 piante di ulivo, 3.000 mq di vigna e il resto seminativo, sul quale è stata costruita in posizione predominante la sua bellissima villa vista mare con piscina. Internamente la casa è composta su di un unico livello a piano terra, distribuita in 421 mq, composto da una grande zona living con particolari librerie, cucina vivibile con attigua sala da pranzo, dai quali puoi collegarti al portico esterno, un bagno di servizio, 4 camere da letto con un guardaroba bagno en suite. Esternamente puoi accedere ad una lavanderia ed un locale tecnico. La particolarità della casa è la grande quantità di luce che entra grazie ad ampie porta finestra in ogni ambiente ed al doppio volume. A completamento di tutto questo l'immobile è corredato di una piscina 15 x 7.5 con lato idromassaggio per un totale di 105Mq a sfioro con servizi attinenti comprese di sauna. Tutto quello che ti occorre nella Maremma Toscana per vivere la tua oasi di benessere. Classe Energetica: non dichiarata

Tipologia:
Villa - Villetta
Gestione:
Vendita
Superficie:
421 m²
Terrazzi:
4 m²
Locali:
12
Camere:
6
Bagni:
7
Condizioni:
Ottimo
Posto Auto:
Posto auto
Giardino:
Privato
Ascensore:
No
Piscina:
No
Aria Condizionata:
Cucina:
Abitabile
Riscaldamento:
Autonomo
Classe energetica:
In attesa di comunicazione

Richiedi informazioni


 

 


(info)