Benvenuto in CaseAffittoeVendita!  Accedi | Registrati

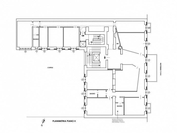
In palazzo liberty del primo novecento, signorile ufficio, posto al secondo piano di mq 370. La distribuzione interna comprende un doppio ingresso, ampio salone diviso da pareti in vetro, sette uffici, una cucina, tre bagni , due balconi ed un terraz

370 m² | 8 locali | € 15.833

Richiedi informazioni

 
 



(info)
 

A pochi passi dall'elegante Via Palestro, proponiamo in UN palazzo liberty del primo novecento, signorile ufficio, posto al secondo piano di mq 370. La distribuzione interna comprende un ingresso doppio, ampio salone diviso da pareti in vetro, sette uffici, una cucina, tre bagni , due balconi ed un terrazzo. Il riscaldamento è centralizzato, mentre l'aria condizionata e l'acqua calda sono autonomi. L'ufficio è dotato di due ascensori e servizio di portineria. Disponibile a partire dall'1 giugno 2026 Per info: 3515765752 Classe Energetica: G - IPE: 175.00kWh/mq anno

Tipologia:
Ufficio
Gestione:
Affitto
Superficie:
370 m²
Terrazzi:
4 m²
Locali:
8
Bagni:
3
Condizioni:
Ristrutturato
Posto Auto:
No
Giardino:
Nessuno
Ascensore:
Piscina:
No
Aria Condizionata:
Cucina:
Cucinotto
Riscaldamento:
Centralizzato
Classe energetica:
G (175.00 kWh/m³ anno)

Richiedi informazioni


 

 


(info)