Benvenuto in CaseAffittoeVendita!  Accedi | Registrati

90 m² | 1 locali | € 118.000

Richiedi informazioni

 
 



(info)
 

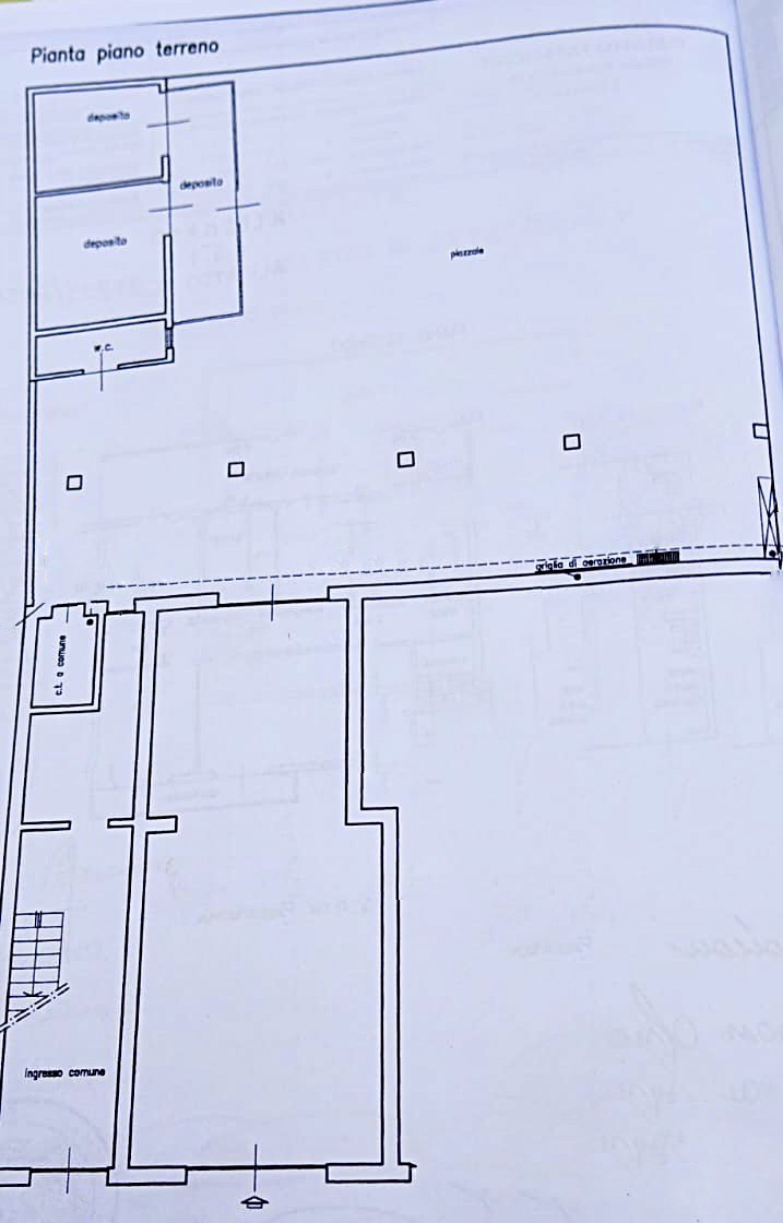
R115 Scandicci Casellina zona centrale e di passaggio con parcheggio. Fondo di 49 mq con altezza interna di 4 metri attualmente accatastato a garage, possibile riportare la destinazione a negozio. L'immobile è composto da un unico ambiente con vetrina di ingresso e bandone tergale da cui si accede ad ampio porticato di 36 mq, ampio piazzale scoperto di circa 125 mq di proprietà con accesso esclusivo, oltre a magazzino esterno di 30 mq composto di due vani oltre tettoia e wc. Richiesta euro 118.000 Tratt. Nostra Esclusiva - Per maggiori informazioni ed appuntamenti contattare telefonicamente - TEL. 334.23.56.902 - MAIL: vilagiimmobiliare@gmail.com Classe Energetica: immobile non soggetto a classificazione

Tipologia:
Negozio
Gestione:
Vendita
Superficie:
90 m²
Locali:
1
Bagni:
1
Condizioni:
Buono
Giardino:
Privato
Ascensore:
No
Piscina:
No
Aria Condizionata:
No
Riscaldamento:
Assente
Classe energetica:
esente

Richiedi informazioni


 

 


(info)