Benvenuto in CaseAffittoeVendita!  Accedi | Registrati

760 m² | € 320.000

Richiedi informazioni

 
 



(info)
 

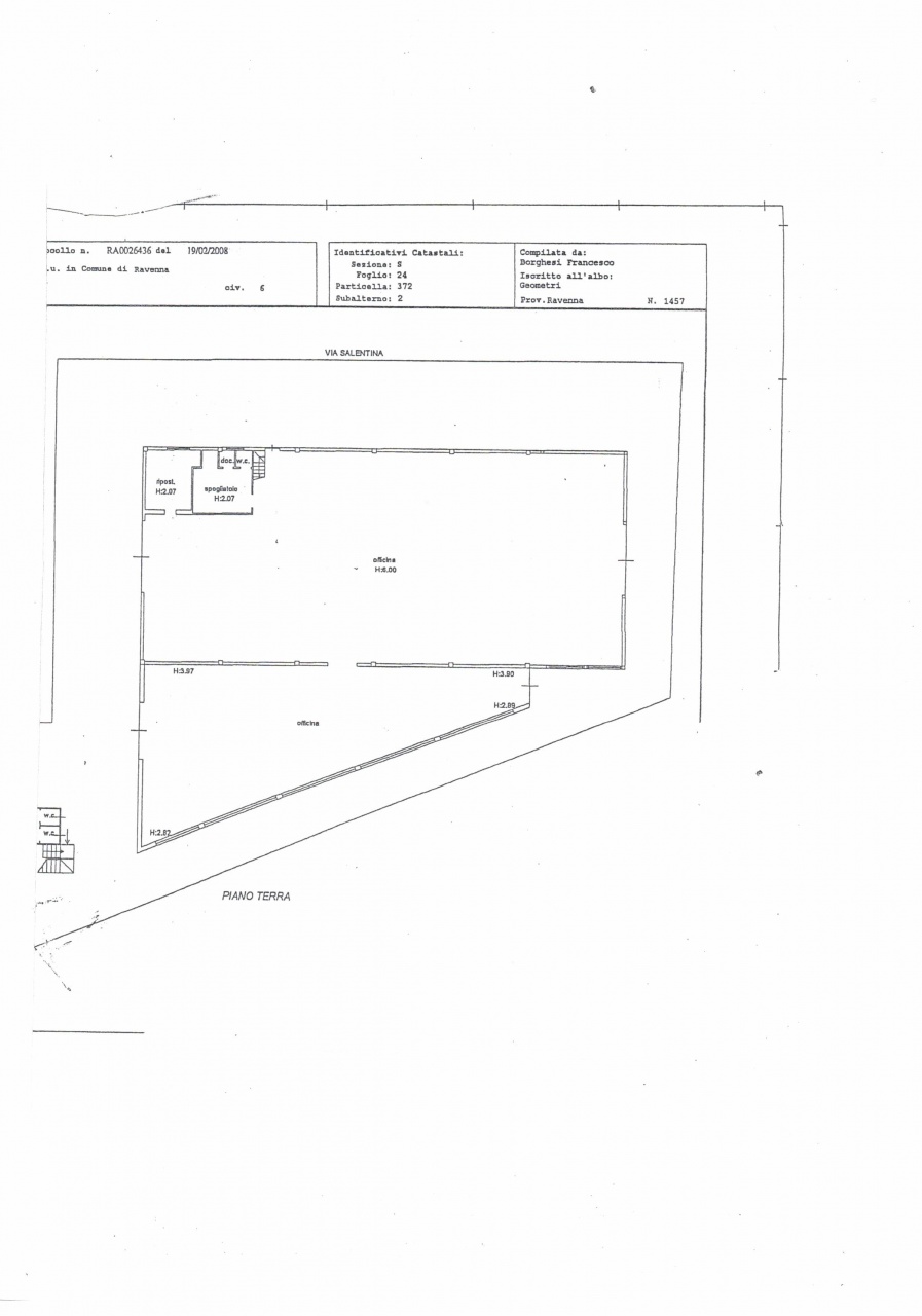
FOSSO GHIAIA zona artigianale: VENDITA IN ESCLUSIVA di capannone di circa mq. 760, con area esterna perimetrale di circa mq. 600. Ideale per attività produttive e artigianali, 2 ampi locali operativi oltre a uffici e 2 bagni. Carroponte, impianto di riscaldamento, impianto elettrico 220V e 380V. Altezza 6 metri, ideale per attrezzature industriali o magazzinaggio. Ampia area di manovra esterna e parcheggi. cl D EP 466,66 EURO 320.000 Classe Energetica: D - IPE: 466.66kWh/mq anno

Tipologia:
Capannone
Gestione:
Vendita
Superficie:
760 m²
Bagni:
2
Condizioni:
Ottimo
Ascensore:
No
Piscina:
No
Aria Condizionata:
No
Classe energetica:
D (466.66 kWh/m³ anno)

Richiedi informazioni


 

 


(info)