Benvenuto in CaseAffittoeVendita!  Accedi | Registrati

125 m² | 1 locali | € 120.000

Richiedi informazioni

 
 



(info)
 

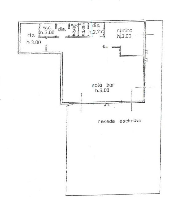
Monteroni d Arbia in strada di grande passaggio si vende fondo accatastato in c1 (negozi e botteghe) ad oggi adibito a bar con un contratto di affitto di circa 130 mq e con un grande resede esclusivo. Per informazioni 338 5495159 Classe Energetica: G - IPE: 0.00kWh/mc anno

Tipologia:
Attività - Licenza
Gestione:
Vendita
Superficie:
125 m²
Locali:
1
Ascensore:
No
Piscina:
No
Aria Condizionata:
Riscaldamento:
Autonomo
Classe energetica:
G

Richiedi informazioni


 

 


(info)