Benvenuto in CaseAffittoeVendita!  Accedi | Registrati

55 m² | 3 locali | € 90.000

Richiedi informazioni

 
 



(info)
 

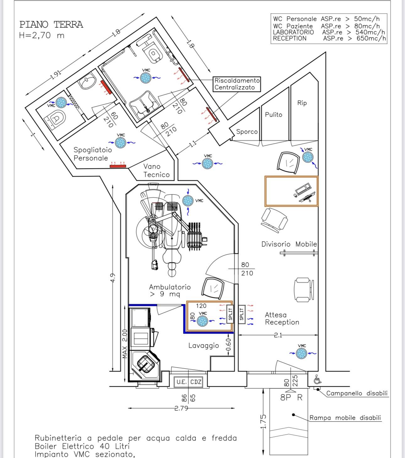
GOA IMMOBILIARE VENDE SPLENDIDO NEGOZIO TOTALMENTE RISTRUTTURATO CON RIFINITURE DI PREGIO DI MQ 50 IN ZONA NERVI PRECISAMENTE IN VIA DEL COMMERCIO COMODO A TUTTI I SERVIZI, ATTUALMENTE COMPOSTO DA INGRESSO/ACCOGLIENZA, 1 STANZA, 2 BAGNI E RIPOSTIGLIO. ATTUALMENTE ADIBITO A STUDIO DENTISTICO MA FACILMENTE TRASFORMABILE IN ALTRO ES.. CENTRO ESTETICO, PARRUCCHIERE, STUDIO TATUAGGI ECC.. OTTIMA OCCASIONE!! PER ULTERIORI INFORMAZIONI CONTATTARE IL 3405901257 OPPURE LO 010591323. POTRETE ANCHE TROVARCI IN VIA DEI SANTI GIACOMO E FILIPPO 24R. Classe Energetica: D - IPE: 0.00kWh/mq anno

Tipologia:
Negozio
Gestione:
Vendita
Superficie:
55 m²
Locali:
3
Bagni:
2
Condizioni:
Ristrutturato
Ascensore:
No
Piscina:
No
Aria Condizionata:
No
Riscaldamento:
Centralizzato
Classe energetica:
D

Richiedi informazioni


 

 


(info)