Benvenuto in CaseAffittoeVendita!  Accedi | Registrati

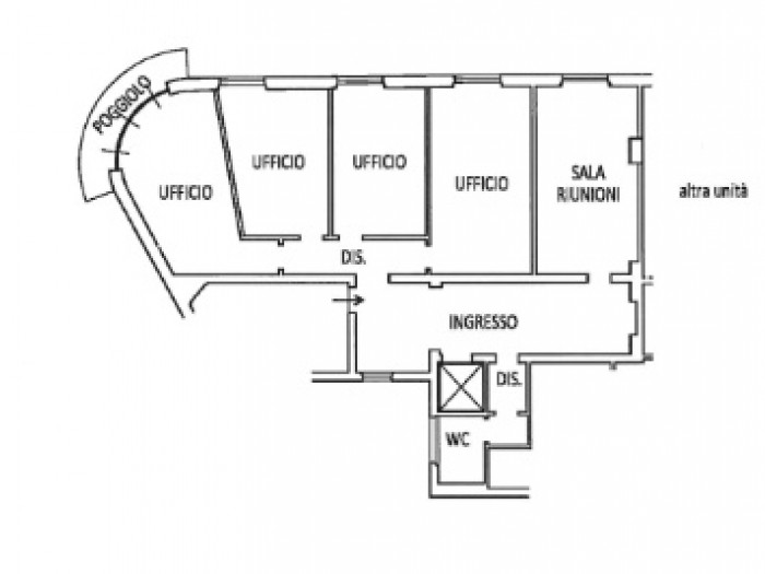
Ufficio composto da ingresso ampio con attesa, 5 locali ampi, servizio con ripostiglio. Contesto di solo due unità commerciali, piano primo con ascensore, riscaldamento e climatizzazione autonomi, ristrutturato 2020. Zona semicentrale appena fuori

190 m² | 5 locali | € 2.500

Richiedi informazioni

 
 



(info)
 

Ufficio composto da ingresso ampio con attesa, 5 locali ampi, servizio con ripostiglio. Contesto di solo due unità commerciali, piano primo con ascensore, riscaldamento e climatizzazione autonomi, ristrutturato 2020. Zona semicentrale appena fuori dalle mura, buona possibilità di parcheggio, comodo alla tangenziale e accesso alla città. Classe Energetica: F - IPE: 0.00kWh/mq anno

Tipologia:
Ufficio
Gestione:
Affitto
Superficie:
190 m²
Locali:
5
Bagni:
1
Condizioni:
Buono
Ascensore:
Piscina:
No
Aria Condizionata:
Riscaldamento:
Autonomo
Classe energetica:
F

Richiedi informazioni


 

 


(info)