Benvenuto in CaseAffittoeVendita!  Accedi | Registrati

100 m² | 3 locali | € 2.700

Richiedi informazioni

 
 



(info)
 

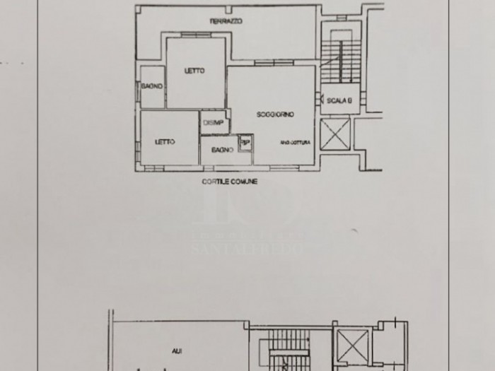
Trilocale in affitto Milano Via Smareglia, 11. Con Terrazzo Disponibile da giugno splendido trilocale situato al primo piano di un edificio di classe energetica A+, caratterizzato da un design moderno e finiture gradevoli. L'appartamento, arredato su misura con mobili di qualità, si distingue per i suoi spazi accoglienti e luminosi. Entrando, accoglie una zona giorno spaziosa con cucina a vista sulla sinistra e un ampio soggiorno a destra, da cui si accede a un meraviglioso terrazzo coperto di 45 mq, arricchito da tende, perfetto per momenti di relax o convivialità. Il parquet corre lungo tutta la casa, mentre i serramenti con triplo vetro e tapparelle automatizzate garantiscono comfort e isolamento acustico. Le persiane mobili permettono di modulare la luce secondo le preferenze. La zona notte è composta da due camere da letto. La master room, elegante e confortevole, è dotata di bagno privato con doccia e accesso diretto a una parte del terrazzo. La seconda camera, con letto da una piazza e mezzo, è ideale per un figlio o come stanza ospiti. Completa la proprietà un secondo bagno con vasca. L'appartamento è disponibile da giugno con una richiesta di 2.700 € mensili, oltre a 300 € di spese condominiali. Situato in una zona strategica, l'appartamento è a pochi passi dalle fermate della metropolitana M4 Blu (Forlanini e Argonne), offrendo eccellenti collegamenti con il centro e l'aeroporto. Per informazioni e visite, contatto Immobiliare Santalfredo al numero WhatsApp 0396908137 Classe Energetica: A+ - IPE: 12.17kWh/mq anno

Tipologia:
Appartamento
Gestione:
Affitto
Superficie:
100 m²
Terrazzi:
4 m²
Locali:
3
Camere:
2
Bagni:
2
Condizioni:
Ottimo
Posto Auto:
No
Giardino:
Comune
Ascensore:
Piscina:
No
Aria Condizionata:
Cucina:
Angolo cottura
Riscaldamento:
Autonomo
Classe energetica:
A+ (12.17 kWh/m² anno)

Richiedi informazioni


 

 


(info)