Benvenuto in CaseAffittoeVendita!  Accedi | Registrati

75 m² | 3 locali | € 650

Richiedi informazioni

 
 



(info)
 

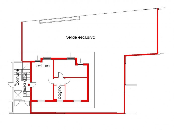
ZONA FAVORITA - In piccola palazzina di recente costruzione, proponiamo appartamento di circa 75 mq collocato al piano terreno con ampio giardino circostante i tre lati di proprietà esclusiva. L'appartamento è composto da ingresso living con cucina abitabile a vista, due camere da letto e servizio con vasca. A completare la proprietà ampio box auto singolo sito al piano interrato raggiungibile mediante ascensore. L'immobile dispone di riscaldamento centralizzato con cantabilizzatori di consumo a pavimento, predisposizione climatizzazione e serramenti in legno con doppio vetro, mentre la palazzina dispone di impianto fotovoltaico per la produzione di energia elettrica delle parti comuni. SI RICERCA UN INQUILINO O COPPIA DI INQUILINI SENZA ANIMALI CON CONTRATTO DI LAVORO A TEMPO INDETERMINATO E CON REDDITI DIMOSTRABILI ED IDONEI ALLA RICHIESTA DI LOCAZIONE - CONTRATTO 4+4 IN CEDOLARE SECCA - LIBERO SUBITO. Classe Energetica: B - IPE: 61.36kWh/mq anno

Tipologia:
Appartamento
Gestione:
Affitto
Superficie:
75 m²
Locali:
3
Camere:
2
Bagni:
1
Condizioni:
Ottimo
Posto Auto:
Box
Giardino:
Privato
Ascensore:
Piscina:
No
Aria Condizionata:
No
Cucina:
Abitabile
Riscaldamento:
Centralizzato
Classe energetica:
B (61.36 kWh/m² anno)

Richiedi informazioni


 

 


(info)